Sold224 Richardson Street, Middle Park
Charming Terrace, Endless Possibilities
Sitting pretty on one of Middle Park's premier tree-lined streets, this charming single-level Victorian residence offers a compelling combination of lifestyle, convenience and exciting potential. Central to Albert Park Secondary College and Middle Park Primary School, and within a short stroll to the beach and Albert Park Lake, it offers an unparalleled living experience.
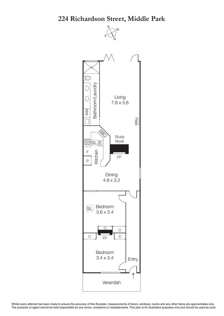
Impressive sun-drenched interiors are introduced by two bedrooms off a stunning oak-lined hall, opening to an exceptional layout perfect for instant comfort, emphasised by high ceilings and abundant natural light that create a serene ambience for relaxed living. Relish the open spaces within the dining zone and the warmth of a traditional solid-brick fireplace, served by a practical central kitchen and generous living zone, which extends through bi-fold doors to a cobblestone-lined courtyard, affording high-walled privacy and ROW access capable of vehicle access.
Two glorious bedrooms feature extensive built-in robes, the main with an original fireplace, whilst a bright bathroom adds convenience with the benefit of full laundry facilities. Take advantage of the highly desired zoning for Middle Park Primary and Albert Park Secondary College, and immerse yourself in the area's charismatic village, a short walk to trams, MSAC, and the bustling shops and cafes on Armstrong Street.
Embrace this location's promising future potential, with a fantastic opportunity to enhance or rebuild and the potential for off-street parking (STCA).
Land size: 145sqm (approx.)
























