Sold8 Little Ingles Street, Port Melbourne
The Box House - Architect's Own Home
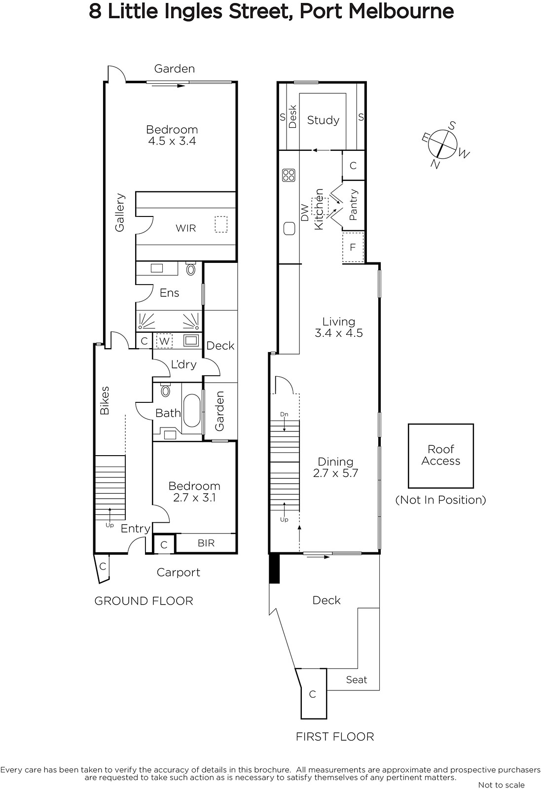
An exercise in design excellence, this masterfully crafted contemporary residence by owner/architect Simon Cookes delivers impressive spaces with work-from-home possibilities that complement its outstanding residential appeal. A floor plan that perfectly balances personality and practicality offers entry-level bedrooms zoned for privacy, the main at the quiet rear featuring ensuite, dressing room and access through full height sliding glass to a secluded courtyard. Taking full advantage of its northern orientation, the upstairs living and dining domain makes a dramatic statement, complemented by designer decking with brilliant city views. A striking black stone kitchen equipped with Miele and De Longhi appliances serves in style while a fitted study space allows for third bedroom flexibility. An exhaustive list of additional appointments includes rooftop access (potential viewing deck, STCA), 6 star rating, solar hot water, custom lighting, reclaimed timber and brickwork, 3500lt underground tank, heating/cooling plus laundry. Bespoke inclusions such as re claimed lighting lining the downstairs hallway, from bottles found under the original house, and the clever use of a glossy cherry veneer from a Port Melbourne boat yard further highlighting its intelligent design. Off street parking at the front. Laneway with vegie patch at the rear. Simply brilliant!










