For Lease79 Victoria Street, Brunswick East
Park Views, Private Courtyard & Three Levels of Living
Inspections
Please refer below for inspection instructions
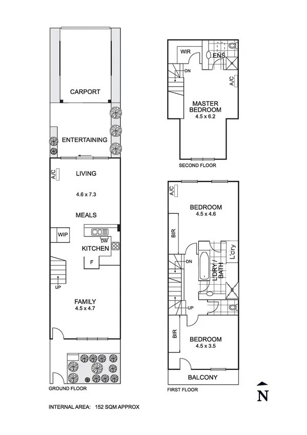
Perfectly positioned opposite Fleming Park, this impressive triple-storey residence delivers an exceptional combination of space, style and lifestyle convenience. Offering three generous bedrooms, two beautifully renovated bathrooms and zoned living, the home is designed for comfortable modern living with excellent separation across each level.
The ground floor welcomes you with a delightful living room that flows through to an open-plan kitchen, meals and family area, highlighted by stone benchtops, a new oven and induction cooktop. Sliding glass doors open to a peaceful and private courtyard, providing a versatile space ideal for entertaining under cover or secure off-street parking via rear access.
Accommodation is thoughtfully zoned across the upper levels. The second floor features two well-proportioned double bedrooms with built-in robes and near-new carpets, serviced by a stylish dual-access central bathroom with walk-in shower and bathtub. The top level is dedicated to a spacious main bedroom retreat, complete with a walk-in robe and private ensuite, creating the perfect sanctuary.
Additional features include multiple split systems providing year-round heating and cooling, along with the added benefit of a 12-panel solar system. The home is superbly located within walking distance to two tram lines, along with an outstanding selection of restaurants, cafes and local breweries. Enjoy easy access to Merri Creek Trail parklands, Lygon Street’s vibrant lifestyle precinct and highly sought-after zoning for Northcote High School.
**To Inspect**
To book an inspection, click either the ‘Request Online Inspection Link’ or ‘Get in Touch’ then select ‘Request an Inspection’ to enter your details. An inspection invitation will then be sent to you via our application platform. If there are no available inspection times, or you cannot attend the listed time, please send an enquiry or contact the leasing agent for further assistance. Please note ‘add to plan’ is not booking into the inspection.
**Please Note**
Open for Inspection times and property availability is subject to change without notice. We highly recommend registering for an inspection you are going to attend to avoid disappointment for cancellations. If you are registered for an inspection, you will be notified by SMS if the inspection is cancelled.
**Caution**
Marshall White has exclusive leasing rights to this property. We do not advertise on Gumtree, Facebook Marketplace or any other social media platforms. Please beware of scammers and apply only via the official advertising link using the Snug platform.
















