Leased5a Cecil Street, Brighton East
Updated Townhouse in Prime Brighton East Location
Please refer below for inspection instructions
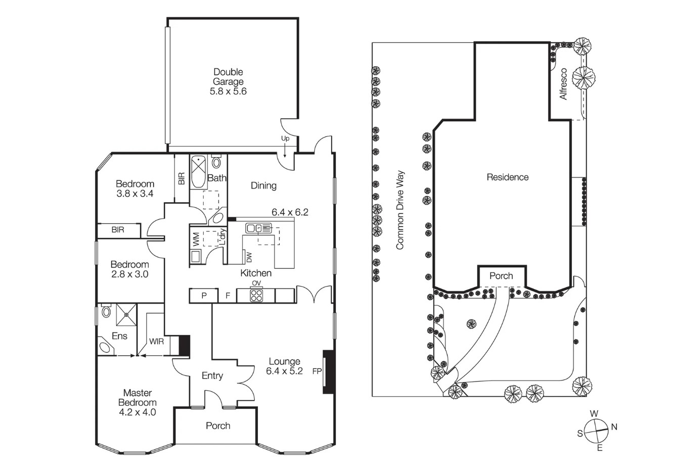
Freshly painted throughout and thoughtfully updated, this single-storey townhouse combines modern comforts with a touch of old-world charm. With new carpets, a updated kitchen featuring stainless steel appliances, and a functional floorplan, this home is sure to appeal to those looking to secure a residence in the highly sought-after Brighton East area.
Ideally positioned at the front of only 2 dwellings and fully fenced for added privacy, the home is conveniently located close to local schools, shops, parks, and public transport.
The property comprises a welcoming entrance hall, a spacious lounge with a gas open fireplace, and an updated kitchen complete with ample cupboard space, gas cooktop, electric oven, dishwasher, and adjoining dining area. The generous master bedroom features a walk-in robe and ensuite, while two additional bedrooms include built-in robes and are serviced by a central bathroom with shower over bath. A separate laundry adds further practicality.
Comfort features include ducted heating, evaporative cooling, fresh paintwork throughout, and a double garage with internal access.
Outside, the home offers two private courtyards – perfect for entertaining.
This well-presented home offers comfort, space, and convenience in a fantastic location.
**To Inspect**
To book an inspection, click either the ‘Request Online Inspection Link’ or ‘Get in Touch’ then select ‘Request an Inspection’ to enter your details. An inspection invitation will then be sent to you via our application platform. If there are no available inspection times, or you cannot attend the listed time, please send an enquiry or contact the leasing agent for further assistance. Please note ‘add to plan’ is not booking into the inspection.
**Please Note**
Open for Inspection times and property availability is subject to change without notice. We highly recommend registering for an inspection you are going to attend to avoid disappointment for cancellations. If you are registered for an inspection, you will be notified by SMS if the inspection is cancelled.
**Caution**
Marshall White has exclusive leasing rights to this property. We do not advertise on Gumtree, Facebook Marketplace or any other social media platforms. Please beware of scammers and apply only via the official advertising link using the Snug platform.













