Sold51 Princess Street, Kew
Period Integrity Meets Exemplary Contemporary Living
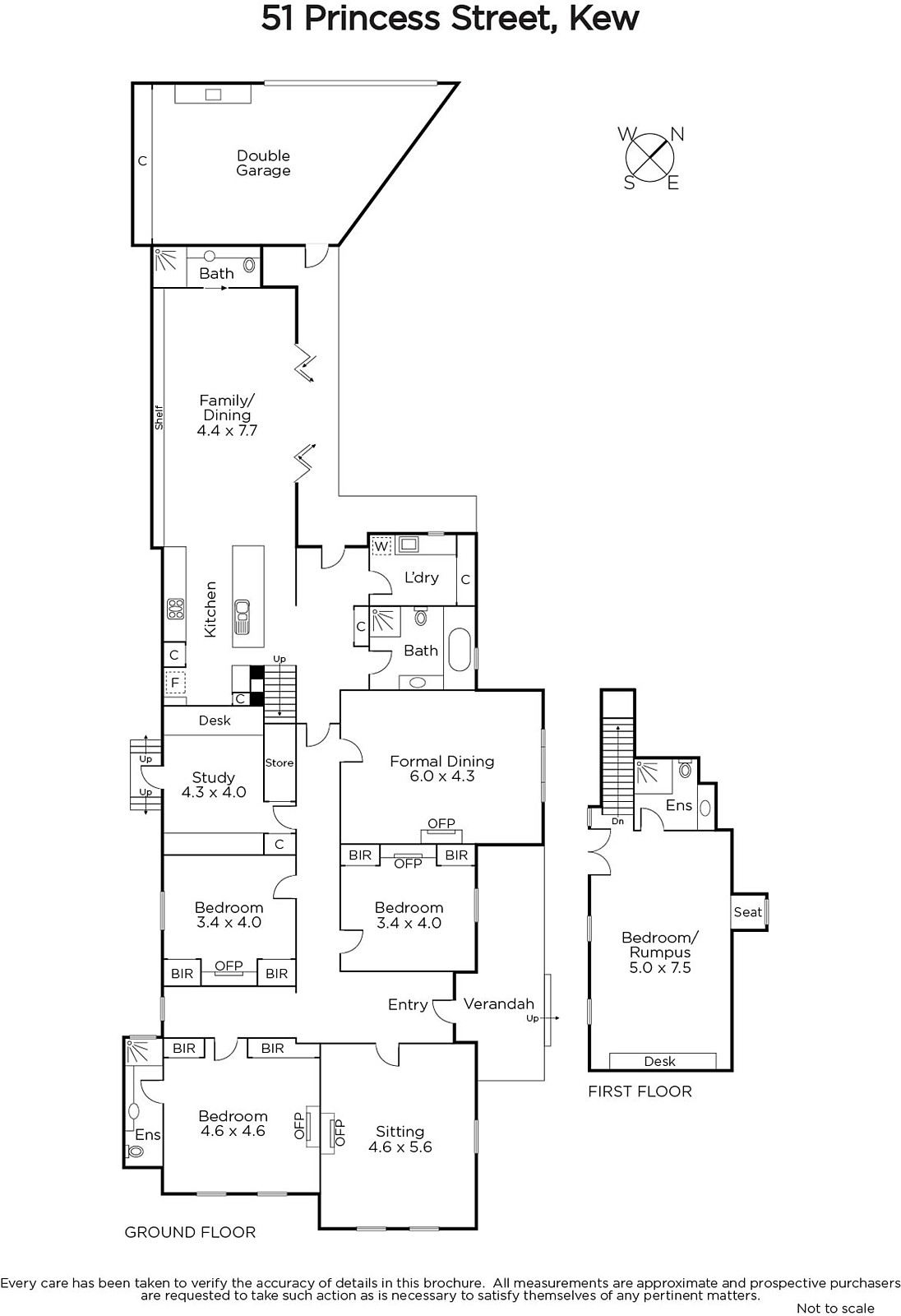
Nestled behind a solid, high bluestone front fence and a lush garden, this superbly presented tiled roof tuck-pointed Hawthorn brick Edwardian residence (c1908) is highlighted by a generous allotment, beautifully preserved period features including tessellated tile verandah, coloured leadlight glass and ornately detailed ceilings matched to stunning contemporary living areas. Complemented by finishes, fittings and furnishings of the highest quality and classically proportioned rooms, the sound proofed interior features a T-shaped double arched hallway opening to a large formal sitting and north-facing dining room, study, three bedrooms, main with pristine ensuite, two stylish bathrooms and laundry. A luxuriously appointed renovation and extension has added a fourth spacious attic-style bedroom with sky windows & blinds, ensuite and roof storage; plus a sleek black granite kitchen with Ilve stainless steel stove, integrated dishwasher and north-facing living/dining with full-height bi-fold doors opening to a private, leafy paved entertaining area with solar & gas heated pool & spa - perfect for indoor/outdoor relaxation and enjoyment with family and friends. Other features include marbleOFPs, Hydronic heating, R/C air conditioning, watering system, remote garage/storage with rear lane access from Beatrice Street.
This magnificent family residence of grand proportions is located within an easy stroll of Kew Junction shopping including Leo's Fine Foods, Toscanos, cafes, restaurants and transport options. Plus the prized Studley Park precinct and Yarra Parklands with easy access to an excellent selection of schools including the prestige private school precinct and the CBD, Yarra Valley or Mornington Peninsular via the Eastern Freeway.
Land size: 743sqm/7,995sqft approx.
Enquire about this property
Request Appraisal
Welcome to Kew 3101
Median House Price
$2,666,500
2 Bedrooms
$1,575,000
3 Bedrooms
$2,173,500
4 Bedrooms
$2,926,250
5 Bedrooms+
$4,580,000
Kew, positioned just 5 kilometres east of Melbourne's CBD, is renowned for its sophistication and elegance.















