Sold344 Richardson Street, Middle Park
Victorian Scope, Sought-After Position
Enjoying one of Middle Park's finest locations on a wide, tree-lined street a stroll from Armstrong Street's array of cafes, restaurants and light rail station, this captivating Victorian residence's single-level dimensions and rear access with potential for off-street parking (STCA) delivers irresistible lifestyle appeal and future scope.
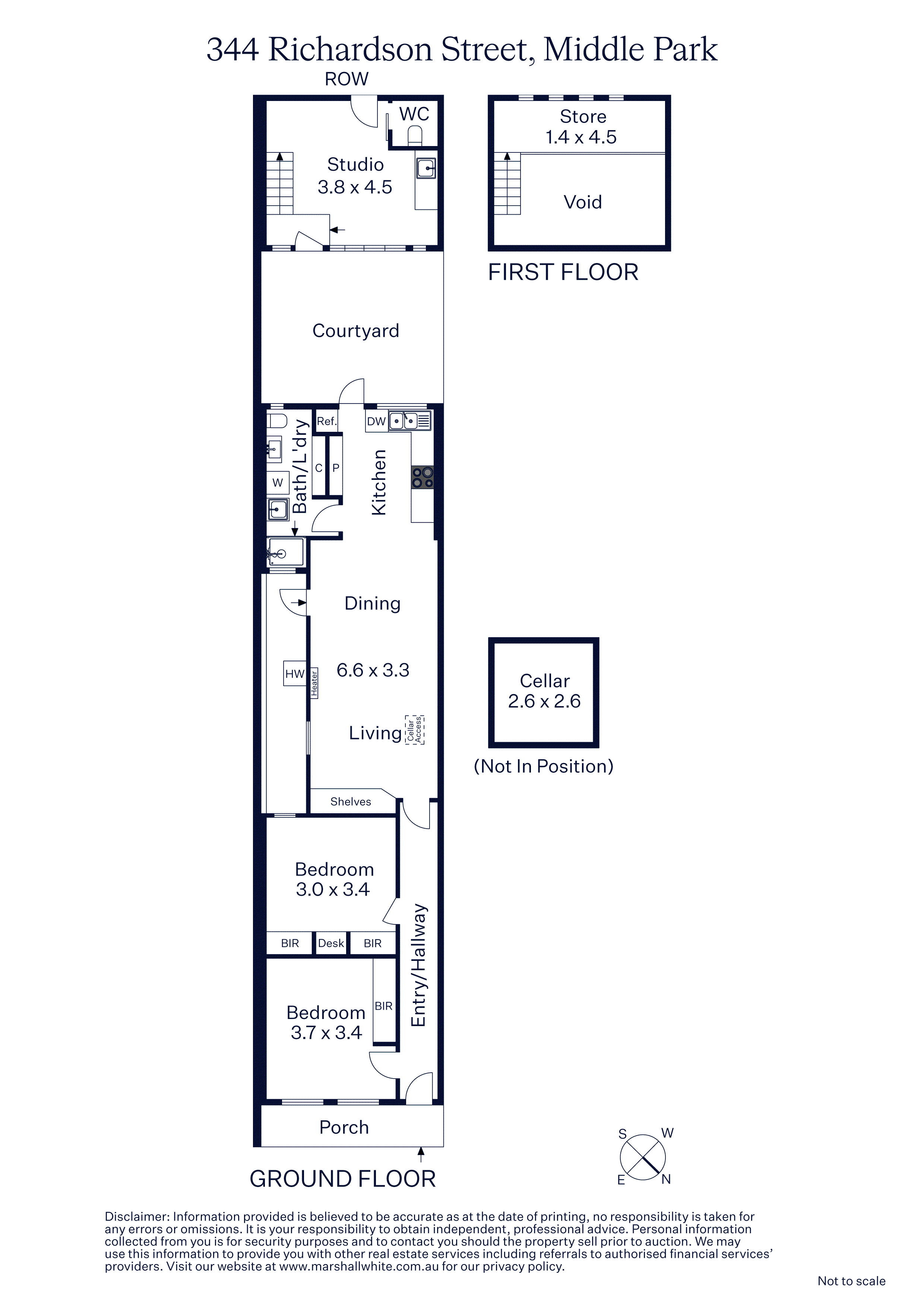
Solid brick with a desirable northern frontage, the home's idyllic layout offers instant comfort with two generously sized bedrooms, each with robes, and a light-filled open-plan rear, emphasising carefree living with high ceilings and a light-well courtyard. High ceilings continue throughout, with timber floors underfoot adding undeniable charm and warmth, leading to the well-appointed kitchen and entirely private paved courtyard edged with greenery.
To the rear, a studio with a mezzanine, kitchenette and WC is ideal as a home office or additional bedroom. Enviably close to the beach, Middle Park Primary School, Albert Park Lake precinct and MSAC, it is a premium offering with prized potential for a modern transformation (STCA).
Enquire about this property
Request Appraisal
Welcome to Middle Park 3206
Median House Price
$2,910,000
2 Bedrooms
$1,885,000
3 Bedrooms
$2,457,500
4 Bedrooms
$3,890,000
Between the city of Melbourne and the expansive waters of Port Phillip Bay, Middle Park is a prestigious suburb known for its well-preserved Victorian and Edwardian architecture.




















