Sold24 Victoria Grove, Hawthorn East
Impressive Style and Lifestyle
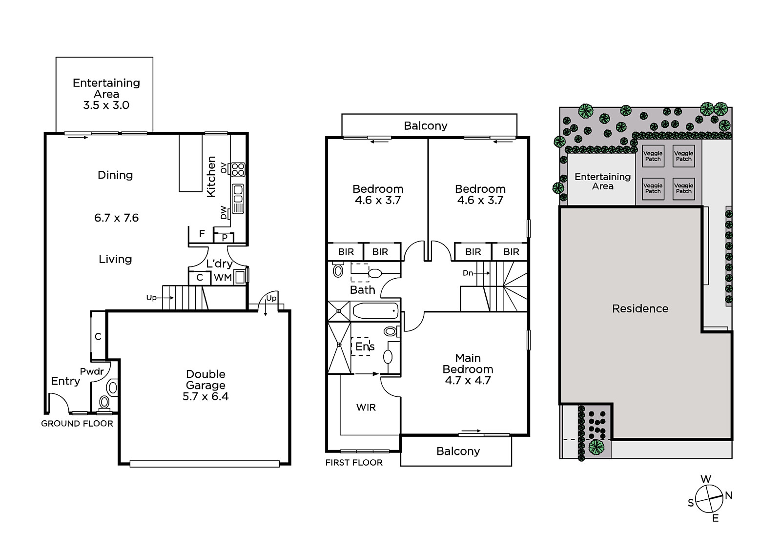
Idyllically situated on the edge of Auburn Park and literally metres from Auburn Village's shops and restaurants, Auburn station and schools, this sensational contemporary executive residence is defined by its exceptional proportions and inviting style.
Soaring ceilings accentuate the superb scale of the open plan living and dining areas appointed with parquetry floors and a gourmet kitchen boasting black granite benches and European appliances. The living area opens out to a private west-facing garden with a shade cloth covered terrace. The expansive proportions continue upstairs through the generous main bedroom with large balcony, walk in robe and stylish en-suite, two additional spacious bedrooms with built in robes and balcony and a bright bathroom.
Impeccably presented throughout, it also includes a powder-room, laundry and double garage.
Enquire about this property
Request Appraisal
Welcome to Hawthorn East 3123
Median House Price
$2,566,000
2 Bedrooms
$1,558,500
3 Bedrooms
$2,180,000
4 Bedrooms
$2,925,000
5 Bedrooms+
$4,157,500
Situated 7 kilometres east of Melbourne's centre, Hawthorn East offers a coveted mixture of greenery, historic charm, and modern amenities that cater to a wide range of preferences and lifestyles.


















