Sold24 Gibdon Street, Richmond
Lifestyle Abounds
Indulge in the lifestyle and locational convenience in a hidden pocket of Richmond from this delightfully renovated Edwardian home adjacent to the Golden Square Bicentennial Park and moments to train and tram.
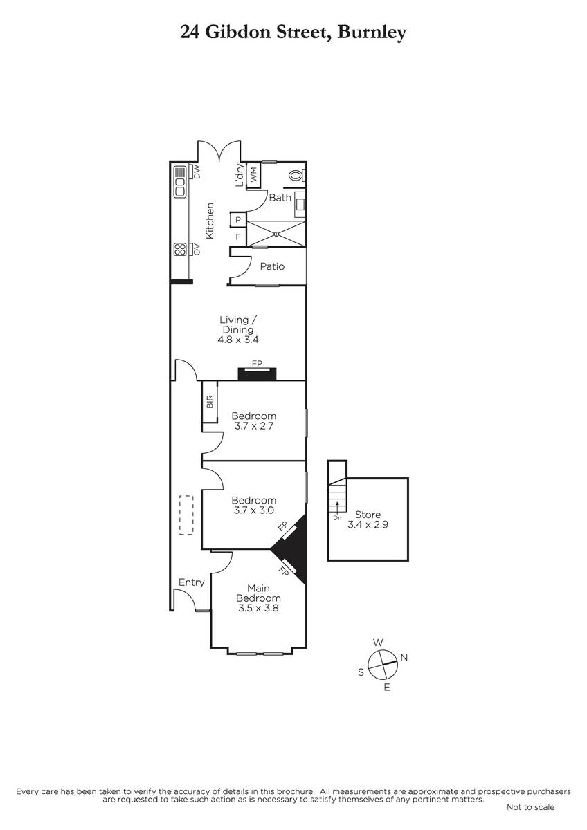
Framed by a picture perfect white picket fence and cottage roses, the entry hall is flanked by three bedrooms of generous size, one with built-in robes and two with wrought iron fireplaces. The inviting living room has an open fire place and split system leading to a contemporary open plan galley style kitchen with stone benchtops, stainless steel appliances, excellent cupboard space and soft closing drawers.
Includes a light and bright contemporary bathroom with walk-in shower, separate Euro laundry and double doors from the kitchen flow through to a north facing paved rear courtyard ideal for relaxing or entertaining. Includes plentiful period detail, polished Baltic pine floors throughout and attic storage. Consider further lifestyle advantages by extending up (STCA) and capitalize on the park view.
Just minutes into the CBD and MCG along with vibrant Swan Street cafes, bars, eateries and shopping or further afield via the Monash Freeway. Walk the trails of the Yarra river from the end of the street or the fairways of the Burnley Golf course.













