Sold172 Canterbury Road, Middle Park
Classic Edwardian, Prized Lakeside Setting
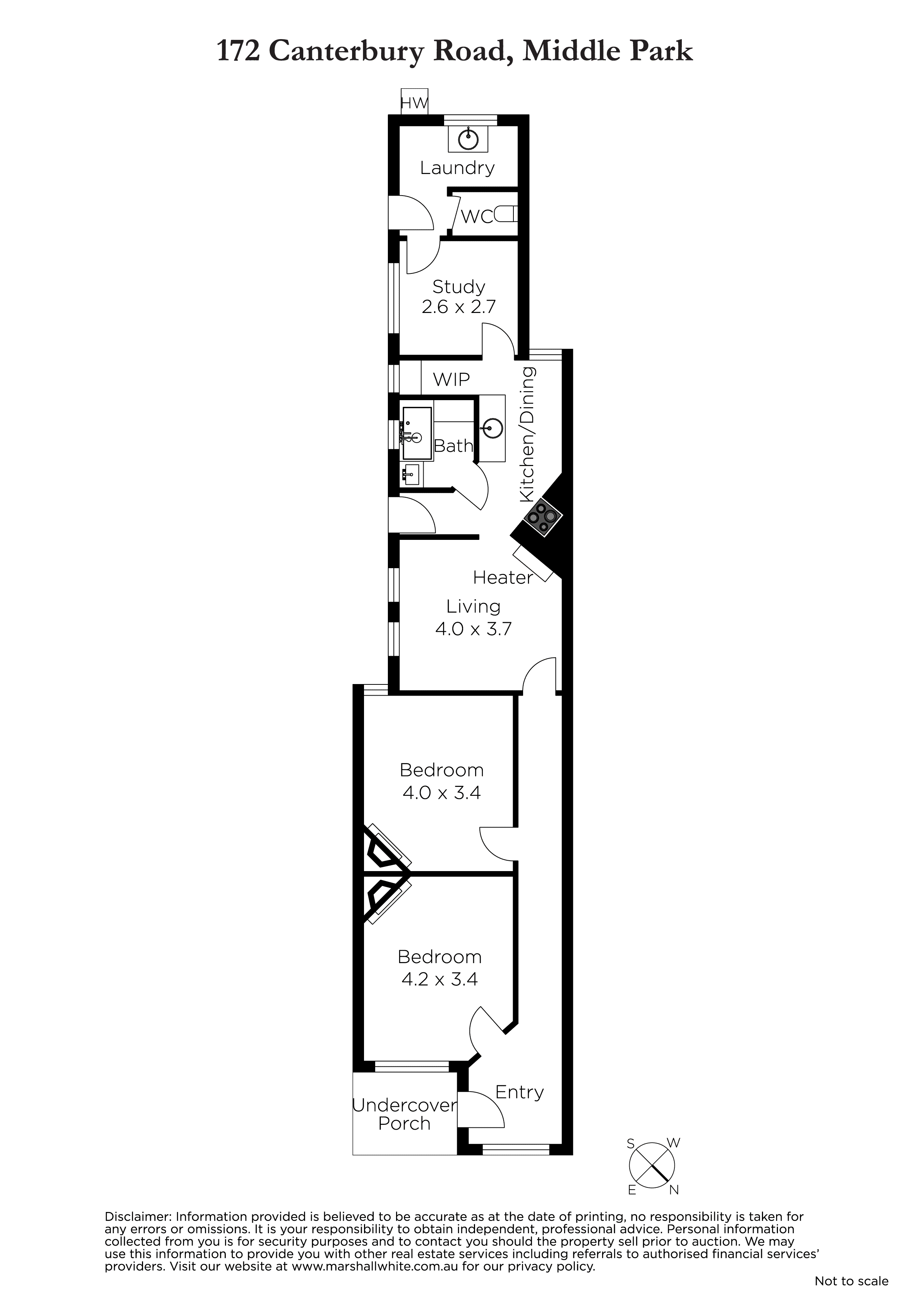
Providing a strong foundation for the future, this solid brick two-bedroom Edwardian residence merges the undeniable lifestyle appeal of its Albert Park Lake surroundings with the potential to add considerable value. Set on a dual-fronted northern allotment of 187sqm (approx) with ROW access for parking at the rear, it offers more than meets the eye, with the options to revive or extend up/out to make the most of its prestigious setting (STCA).
Introduced by a tuck-pointed facade and stunning leadlight details, the home’s single-level proportions wrap around two generous-sized bedrooms with ornate fireplaces and high ceilings to a central living room and rear kitchen/meals domain. A freestanding gas stove, adjoining bathroom, and large laundry room with a separate WC showcase the space on offer, with room to further maximise the width of the property with a modern transformation (STCA).
Complete with gas heating and gated OSP to the rear, this is an excellent start or option for those seeking accessibility and prestige, within walking distance to Armstrong Street village, the light rail, Albert Park Lake and recreation fields, the beach and zoned for Albert Park College.
Enquire about this property
Request Appraisal
Welcome to Middle Park 3206
Median House Price
$2,865,000
2 Bedrooms
$1,885,000
3 Bedrooms
$2,412,500
4 Bedrooms
$3,873,750
Between the city of Melbourne and the expansive waters of Port Phillip Bay, Middle Park is a prestigious suburb known for its well-preserved Victorian and Edwardian architecture.

















