For Lease16 Alexandra Street, South Yarra
Refined Edwardian Living with Designer Renovation and Sunny Courtyard
Inspections
Please refer below for inspection instructions
A beautiful blend of period charm and contemporary refinement, this classic Edwardian residence has been thoughtfully updated to deliver a light filled and highly functional inner-city lifestyle.
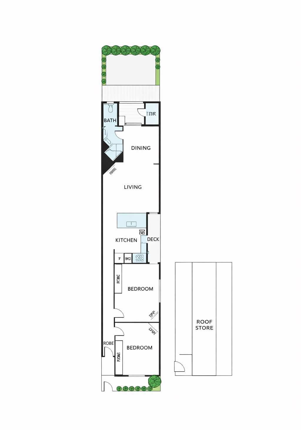
Recently refreshed throughout, the home features new paint, new blinds and a stunning renovated bathroom and laundry, all complementing the home’s original character. High ceilings, polished timber floors and decorative fireplaces enhance two generous bedrooms, each offering excellent proportions and natural light.
The heart of the home opens to an expansive living and dining domain, seamlessly connected to a sleek, updated kitchen with stone benchtops and quality appliances. Bathed in natural light, this space flows effortlessly through to a private, sun filled courtyard, creating an ideal setting for entertaining or quiet enjoyment.
The newly renovated bathroom is beautifully appointed with a clean, modern aesthetic, while the separate laundry adds further practicality.
Additional features include ducted heating and cooling, large roof attic storage and a highly sought after South Yarra location.
Positioned moments from Fawkner Park, Toorak Road, Prahran Market and Chapel Street, with easy access to South Yarra Station and trams, this is a home that delivers lifestyle, character and convenience in equal measure.
**To Inspect**
To book an inspection, click either the ‘Request Online Inspection Link’ or ‘Get in Touch’ then select ‘Request an Inspection’ to enter your details. An inspection invitation will then be sent to you via our application platform. If there are no available inspection times, or you cannot attend the listed time, please send an enquiry or contact the leasing agent for further assistance. Please note ‘add to plan’ is not booking into the inspection.
**Please Note**
Open for Inspection times and property availability is subject to change without notice. We highly recommend registering for an inspection you are going to attend to avoid disappointment for cancellations. If you are registered for an inspection, you will be notified by SMS if the inspection is cancelled.
**Caution**
Marshall White has exclusive leasing rights to this property. We do not advertise on Gumtree, Facebook Marketplace or any other social media platforms. Please beware of scammers and apply only via the official advertising link using the Snug platform.
Enquire about this property
Request Appraisal
Welcome to South Yarra 3141
Median Rental Price
$929
2 Bedrooms
$796
3 Bedrooms
$1,158
4 Bedrooms
$1,538
South Yarra, an iconic Melbourne suburb, is renowned for its sophisticated charm, merging high-end retail, exquisite dining, and vibrant nightlife with green spaces.


















