Sold103 Merton Street, Albert Park
Prime Albert Park Address with Visionary Potential
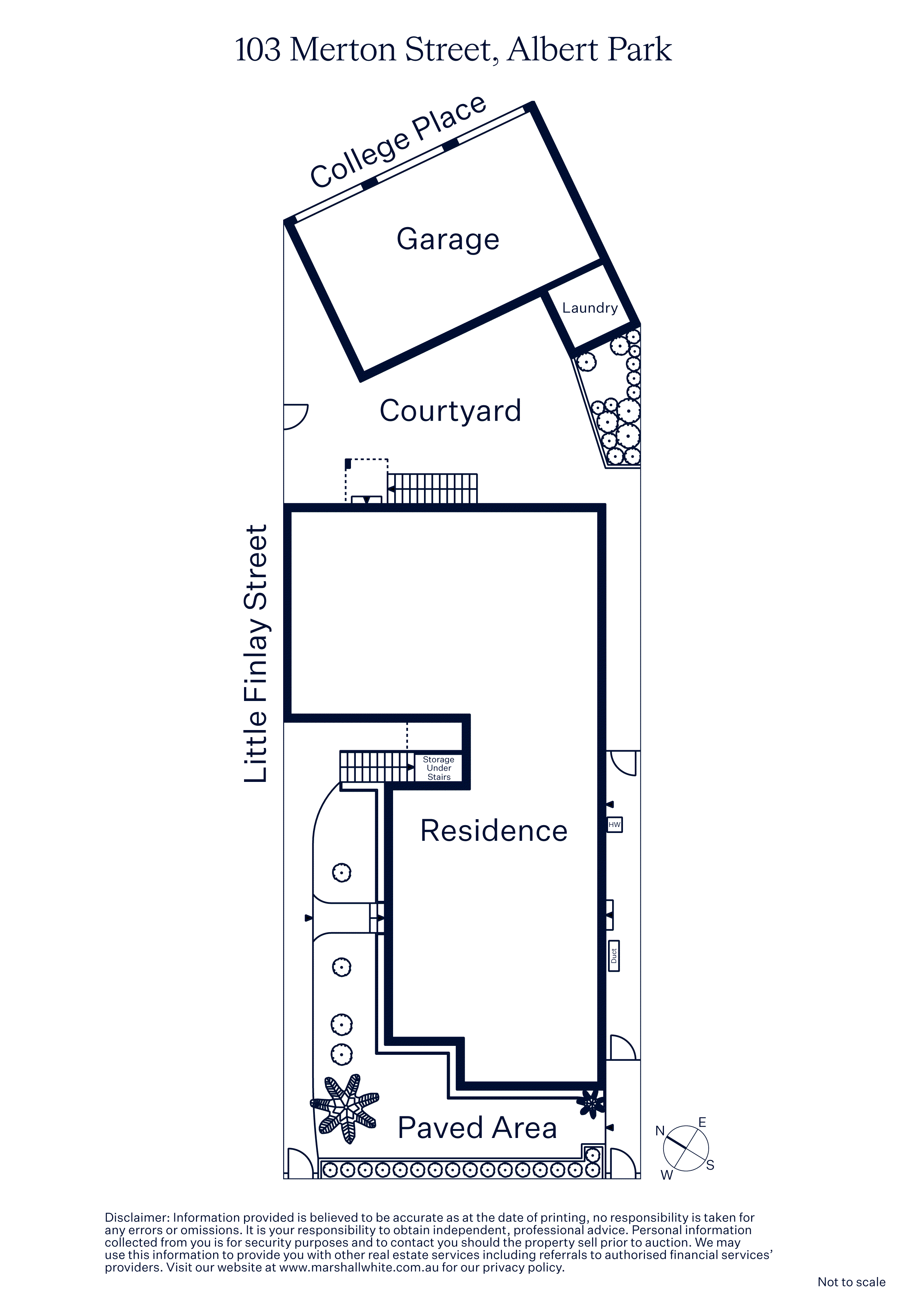
Positioned on the tightly held dress circle of Albert Park Village, this remarkable property offers a rare opportunity for buyers seeking a prestigious address. Boasting an expansive land size of 415sqm*, the site currently comprises three residences on a single title, positioned on a corner allotment. It provides immediate enjoyment or offers unmatched potential for a transformation into a single refined residence (STCA), catering to both investment and personal ambitions.
Imposing and iconic with its solid-brick Art Deco frontage, the 'Montello' home is currently divided into three charming apartments, each showcasing inherent appeal with a thoughtful three-bedroom floorplan. Featuring the front apartment, newly refurbished with a large separate living and formal dining room offering three bedrooms, bathroom and private balcony. Period features such as exposed timber and magnificent double leadlight doors grace all the living, dining and master bedroom. Numerous leadlight windows feature throughout the living areas. Another unit with a modern kitchen and brand new appliances, offers an open-plan layout with generously appointed bedrooms that align with contemporary tastes while honouring the era's character. The rear, ground floor apartment showcases its stunning original period features. Adding to its appeal, the property includes three spacious garages - a rare find in such a prestigious location - and a spacious backyard perfect for entertaining.
Whether looking to invest in rental opportunities or create a grand single-family home complemented by the rich architectural heritage characteristic of the era, this property offers immediate and future possibilities. With vibrant village cafes, a choice of nearby trams or the light rail, MSAC, the beach, and Albert Park Lake all just a quick moment away, and in desirable proximity to Melbourne's finest schools, South Melbourne Market, and the CBD, this property is a compelling choice for those who appreciate lifestyle connectivity.
*approximate land size
Enquire about this property
Request Appraisal
Welcome to Albert Park 3206
Median House Price
$2,440,000
2 Bedrooms
$1,677,500
3 Bedrooms
$2,518,750
4 Bedrooms
$3,762,500
Albert Park, nestled just 3 kilometres from Melbourne’s CBD, is a picturesque suburb known for its blend of historic charm and modern amenities.






















