Sold7 Princes Street, St Kilda
Grand St Kilda Icon - A Myriad of Options Await
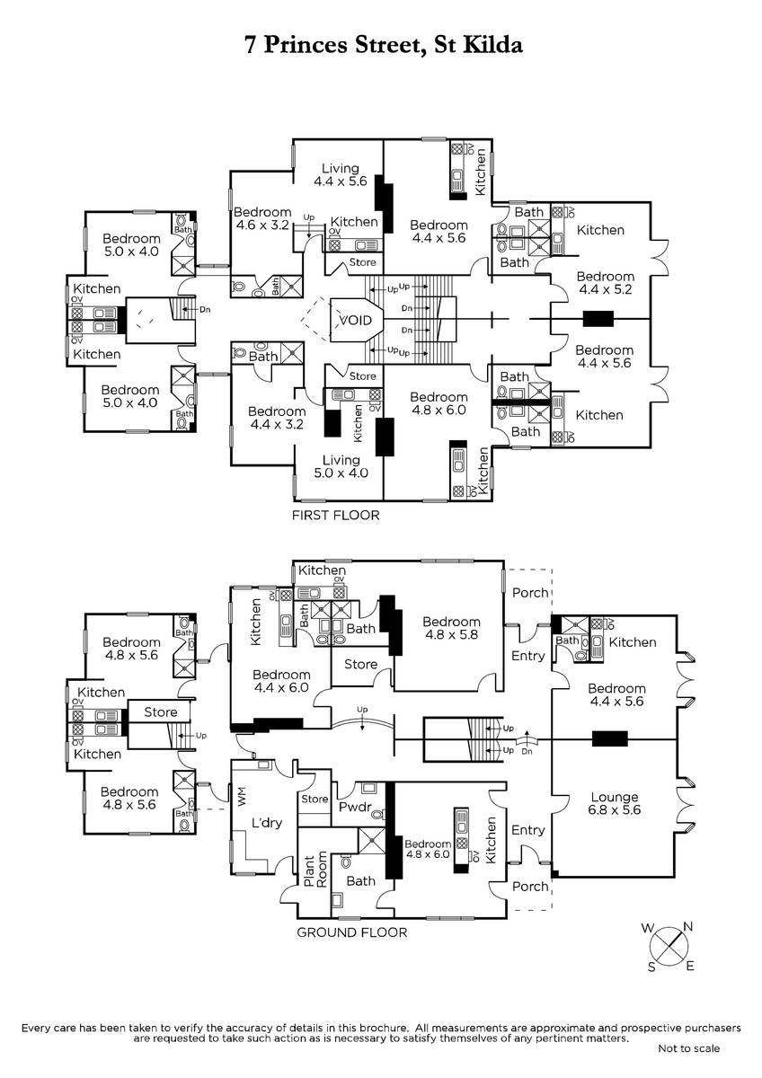
An icon of St Kilda that offers a once-in-a-lifetime opportunity for renovation or redevelopment (STCA), this grand Victorian mansion boasts approx. 1,000sqm and currently comprises an extraordinary 14 fully self-contained bedsit apartments and is ready for its next exciting chapter. Steeped in tradition over two levels, this remarkable building is perfectly positioned to reward your vision in an authentic St Kilda setting.
Each of the apartments is basically presented with kitchens, bathrooms, living / bedrooms and easy scope to introduce some of your own style, to really do justice to this remarkable building and its blue-ribbon location. Importantly, there is ambient hydronic heating throughout, a large central laundry, towering ceilings, plenty of ornate Victorian detail and ample off street parking that is easily accessed via its second street frontage to Little Grey street at the rear.
Some future options could include - Boutique Hotel, boarding house, backpackers accomodation or a grand family home (STCA).
Worthy of your very best efforts, this is a location of enduring market appeal near so many wonderful cafes, restaurants and bars along Fitzroy Street, as well as city-bound trams for effortless commuting and plenty of outdoor recreation at the waterfront and the Lake.
Enquire about this property
Request Appraisal
Welcome to St Kilda 3182
Median House Price
$1,650,000
2 Bedrooms
$1,211,250
3 Bedrooms
$1,650,000
4 Bedrooms
$2,330,000
St Kilda, located 6 kilometres southeast of Melbourne’s CBD, is a vibrant seaside suburb known for its eclectic charm and rich cultural heritage.



















