Sold10 Gertrude Street, Prahran
Past, Present and Future Appeal
Totally charming and impeccably presented, this classic single level solid brick Edwardian residence offers sensational current appeal and exciting scope to further update and extend with the possibility of city views (STCA). Literally metres from the fabulous restaurants and shops on Chapel St and with the Chris Gahan Reserve as its backyard, it is further advantaged by a second street frontage on Pine Grove.
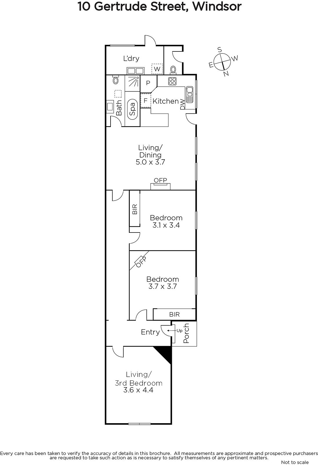
High ceilings and Baltic pine floors are featured in the L-shaped hallway, inviting living room/3rd bedroom, generous dining room with open fireplace and bright modern Blanco kitchen. The two spacious carpeted double bedrooms, both with built in robes, are accompanied by a pristine bathroom with spa-bath. The private brick paved garden offers secure off street parking for 2 cars.
Ideal to enjoy now while considering the many options, it also includes outdoor laundry and 2nd toilet. Land size: 251sqm approx.










