Sold10/8 Cobden Street, Kew
Brand New 266sqm Townhouse with Northern Views
Located in the "Innova" complex this brand new, sophisticated and superbly appointed townhouse, designed by the renowned Architects, Peddle Thorpe is highlighted by a brilliant location moments from Glenferrie Road or Kew Junction shopping including Leo's Fine Foods, Toscanos, cafes, restaurants; with easy access to the Kew Recreation Centre, Eglinton Reserve, Yarra parklands and public transport options or the Eastern Freeway for travel to the CBD - all offering an idyllic oasis and backdrop to a busy inner-city lifestyle.
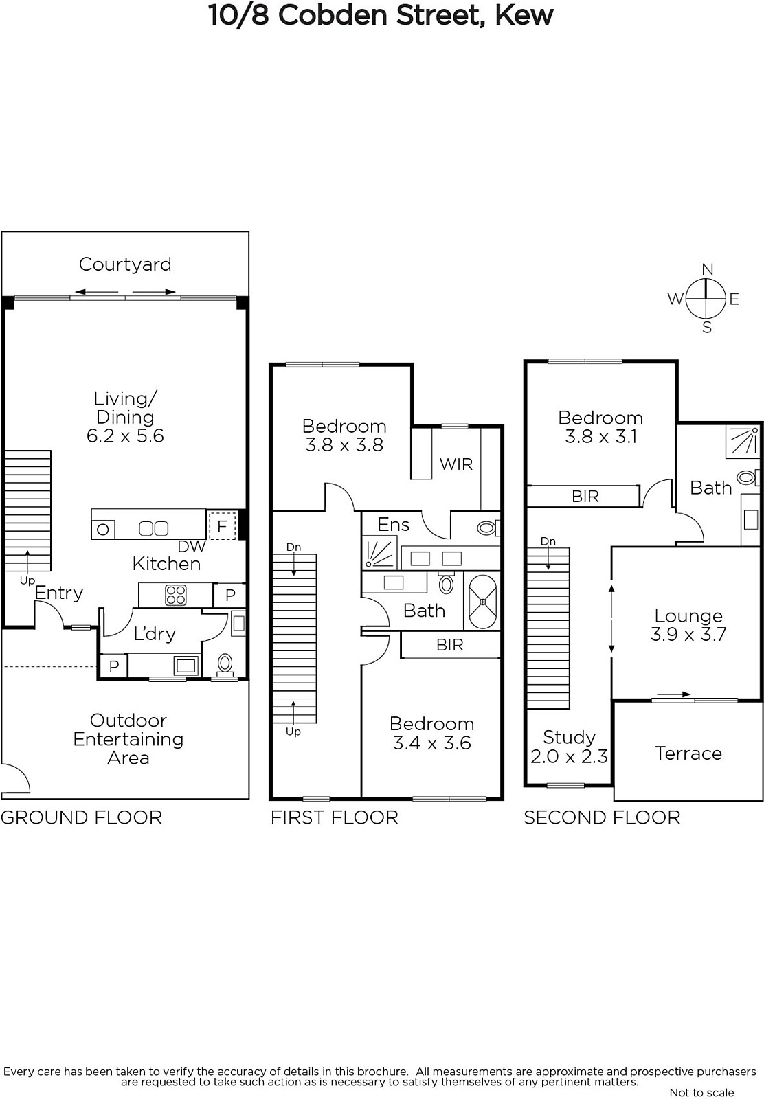
Quietly and securely positioned at the rear of the complex this spacious tri-level interior capitalises on a northern orientation to its interior featuring floor-to-ceiling windows and an all-white decor delivering a light and bright, spacious accommodation. Featuring wide floor boards in the generous ground floor living and dining area which opens to a northern covered terrace and front courtyard plus a sleek kitchen equipped with CaesarStone bench tops and quality Miele appliances, powder room and laundry. The second level has new pale grey carpets, two bedrooms, main with WIR and fully tiled ensuite and family bathroom leading to a third level with views to the northern ranges plus an additional bedroom, bathroom, retreat/study, study alcove opening to a roof garden/terrace. Other features include video intercom entry, ducted heating & cooling, new wool carpets, storage cage, secure auto basement parking for two cars. Total size 266sqm / 28.6sq approx.










