Sold10/8 Cobden Street, Kew
Style with Lifestyle to Match
Superbly combining stylish serenity with a sophisticated lifestyle on the edge of Kew Junction and Glenferrie Road, this stunning boutique residence's three sunlit and spacious levels have been brilliantly designed by Peddle Thorpe Architects to cater impeccably to modern family requirements.
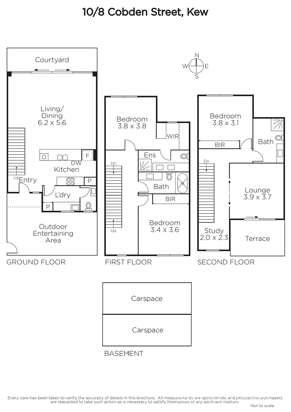
The northern orientation, floor-to-ceiling glass and all-white decor create a wonderful sense of light throughout while timber floors supply a natural warmth to the expansive open plan living/dining room and gourmet kitchen appointed with Caesarstone benches and Miele appliances. Perfect for outdoor entertaining, the living area flows out to both a north-facing undercover terrace and peaceful front courtyard. Upstairs, the main bedroom with a designer ensuite and walk-in robe is matched by a second double bedroom with robe and a stylish bathroom. Enjoying fabulous views to the ranges, the third bedroom with robe, chic bathroom, versatile retreat or 4th bedroom and a study nook are on the top level accompanied by a large terrace/garden.
Literally steps away from an array of shops including Leo's and Toscano's, restaurants, trams and elite schools and close to Kew Recreation Centre, parks and freeway access. Includes video intercom entry, ducted heating/cooling, powder room, laundry, storage cage and secure auto basement parking for two cars.
Total size: 266sqm approx.















