Sold1/1 Woorigoleen Road, Toorak
Single Level Living in Elegant Surrounds
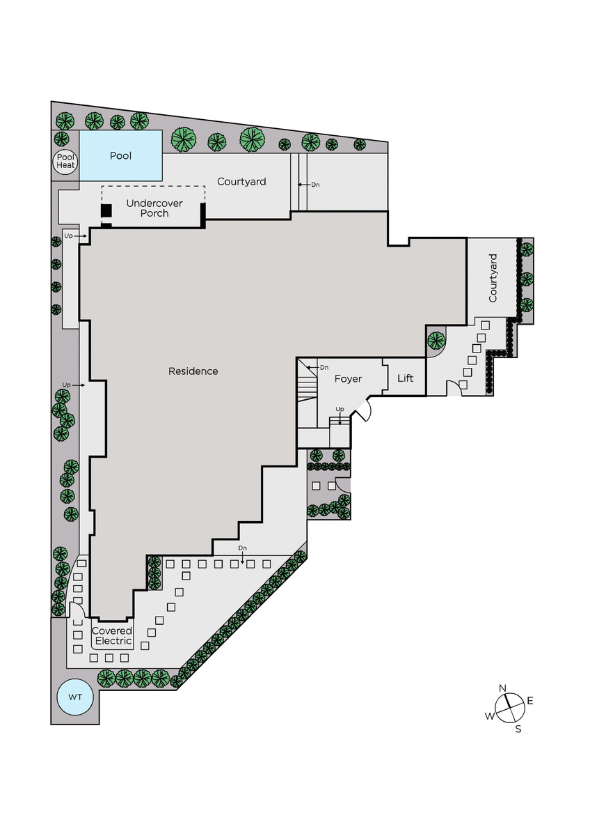
Beautifully set within its own private leafy garden surrounds, this architect designed ground floor residence, is one of only two whole floor apartments, in a magnificent boutique building exclusively situated on the corner of Clendon Road opposite "Coonac".
A broad gallery featuring lofty ceilings and oak parquetry floors presents a refined executive study or third bedroom and an elegantly proportioned formal sitting with gas fire and dining room, both opening to the garden. Radiant with natural light, the expansive open plan living served by a gourmet kitchen appointed with Gaggneau appliances, stone benches and a walk in pantry extends out through bi-fold doors to the lush landscaped gardens with extensive paving. The opulent main bedroom with lavish ensuite and walk in robe and the second king-sized bedroom with stylish ensuite and built in robe also open to the surrounding gardens. On the lower level via internal stairs or lift is a theatre/gym, storage room and three car basement parking.
In a prestigious location near Toorak Village, Toorak Rd trams and elite schools, it includes alarm, video intercom, keypad entry, heating/cooling, ducted vacuum, powder-room and laundry.
Enquire about this property
Request Appraisal
Welcome to Toorak 3142
Median House Price
$5,054,444
2 Bedrooms
$2,705,000
3 Bedrooms
$3,686,250
4 Bedrooms
$6,200,000
5 Bedrooms+
$14,287,500
Toorak, an emblem of luxury and prestige, stands as Melbourne's most illustrious suburb, located just 5 kilometres southeast of the CBD.
















