SoldPenthouse, 14 Lascelles Avenue, Toorak
A Penthouse Without Limits
Inspect By Private Appointment
Positioned atop one of Toorak’s most exclusive addresses, this remarkable penthouse shell at 14 Lascelles Avenue presents an unrivalled opportunity to craft a home of extraordinary scale and distinction.
Encompassing approximately 406sqm internally and surrounded by sweeping city and treetop views, this unfinished residence invites you to realise your vision of contemporary luxury in one of Melbourne’s most prestigious locales.
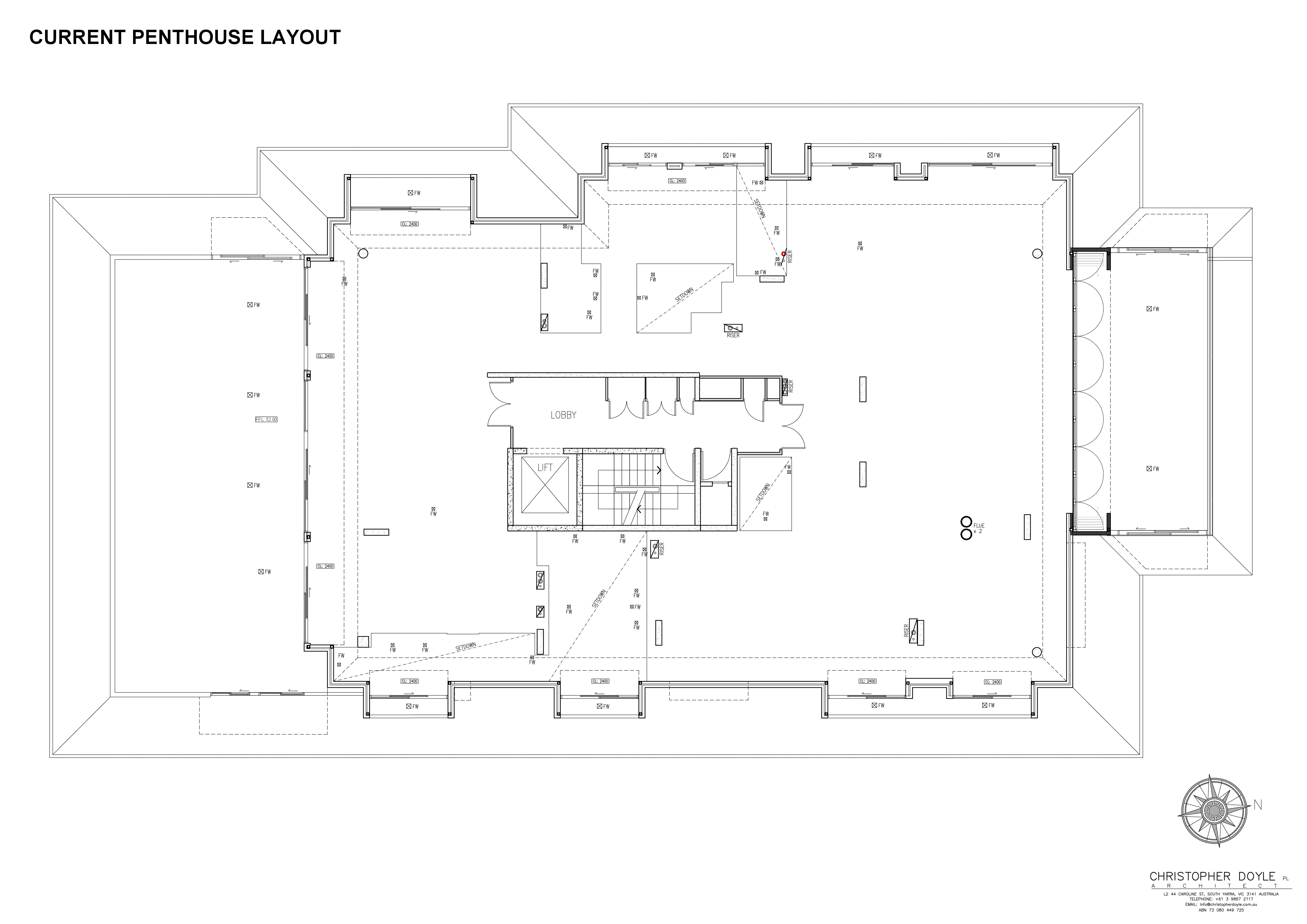
The proposed design by Christopher Doyle Architects showcases grand proportions throughout, including vast open-plan living and dining areas flowing to a north-facing entertainer’s terrace, four ensuite bedrooms, including a magnificent master suite with dressing room and private terrace and thoughtfully positioned study and retreat zones.
With a flexible semi-warm shell structure, this space allows for full creative freedom, whether you envision a statement kitchen, dedicated cinema, wine cellar, or wellness sanctuary. Every detail, finish and fixture can be personally curated to reflect your individual taste and lifestyle.
Featuring 6 car spaces and set within a tightly held pocket just moments from Toorak Village, Como Park and the Yarra River, this address blends serenity with elite convenience, surrounded by Melbourne’s finest retail, dining and private schooling.
A truly rare opportunity to design and define a world-class penthouse residence entirely your own.
Enquire about this property
Request Appraisal
Welcome to Toorak 3142
Median House Price
$5,008,888
2 Bedrooms
$2,460,000
3 Bedrooms
$3,580,000
4 Bedrooms
$6,350,000
5 Bedrooms+
$13,500,000
Toorak, an emblem of luxury and prestige, stands as Melbourne's most illustrious suburb, located just 5 kilometres southeast of the CBD.














