Sold92 Bridport Street, Albert Park
"McAdam's Terrace"
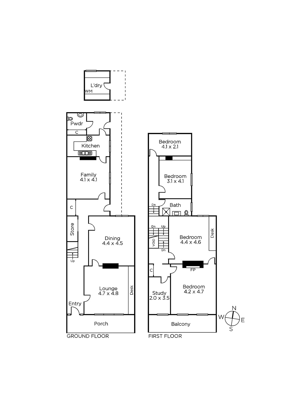
Displaying magnificent original grandeur and situated within a deep private northwest-facing allotment with second street access, this glorious balconied Victorian residence is enviably located on the edge of Albert Park Village in the acclaimed St Vincent Gardens precinct. Compromising 8 principle rooms, it offers significant appeal as a stunning family residence or consulting rooms.
Gracious proportions and imposing high ceilings define the wide arched entrance hall and elegant formal rooms. A large family room served by an adjacent kitchen and powder-room open to the exceptionally deep private northwest paved garden with off street parking from Bevan Street. Flexible accommodation upstairs comprises four spacious bedrooms
a large study, a bathroom and full width balcony.
The perfect foundation for a straightforward renovation by extending recently lapsed stamped plans and permits for an extraordinary residential extension (STCA). Land size: 316sqm approx.
Enquire about this property
Request Appraisal
Welcome to Albert Park 3206
Median House Price
$2,440,000
2 Bedrooms
$1,677,500
3 Bedrooms
$2,518,750
4 Bedrooms
$3,762,500
Albert Park, nestled just 3 kilometres from Melbourne’s CBD, is a picturesque suburb known for its blend of historic charm and modern amenities.

















