Sold9 Northcote Street, Flinders
Peaceful Seclusion with Panoramic Golf Course and Water Views
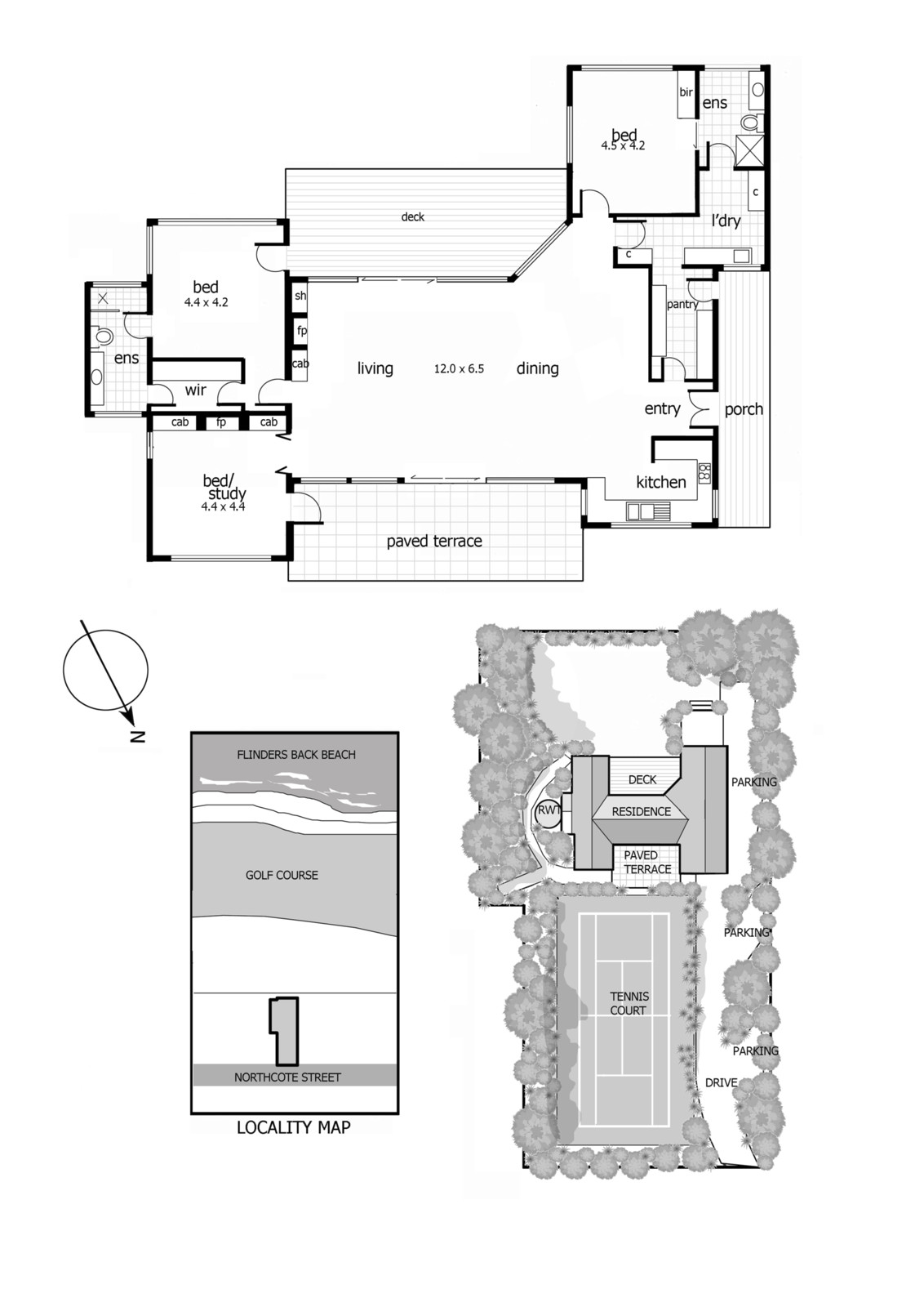
Positioned in one of Flinders most highly regarded pockets, this instantly inviting single-level residence combines unique character with beautiful panoramic views across the 13th hole of the Flinders Golf Course to Bass Strait.
Set on 3688sqm approx. adjoining the Golf Course, the tranquil home is an ideal weekend retreat or equally appealing permanent home with its relaxed ambience, natural light and excellent amenity including a tennis court.
A spacious open-plan living and dining room with an open fireplace and hardwood floorboards forms the hub of the home with picture windows flooding the interior with natural light and sliding walls of glass opening to both a terrace overlooking the tennis court and a wide deck fronting the golf course and water. A separate sitting room is the perfect place for quiet enjoyment or cosy winter nights by the fireplace; while the separate kitchen also has garden views. Two fitted bedrooms each enjoy golf course and water views and en suites.
Tightly held, this is a rare opportunity to secure a generous allotment and picturesque home with excellent views walking distance to Flinders Village.
Agents in Conjunction
Kay & Burton Flinders
Rollo Moore 0418 336 152
Tom Barr Smith 0438 368 020
Enquire about this property
Request Appraisal
Welcome to Flinders 3929
Median House Price
$2,025,000
3 Bedrooms
$1,850,000
4 Bedrooms
$1,175,000
Flinders, about 95 kilometres south of Melbourne on the Mornington Peninsula, is a charming coastal village known for its picturesque scenery, historic buildings, and laid-back lifestyle.
















