Sold9 Euston Street, Malvern
Bespoke Design, Brand New Luxury
Inspections strictly by private appointment only. Please contact the listing agent to schedule a time.
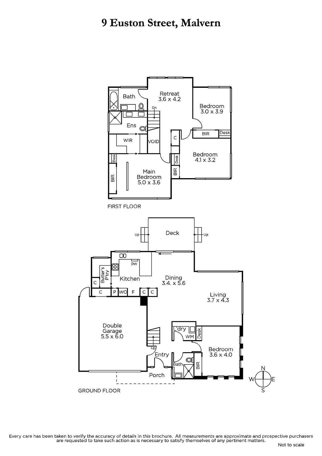
Only just completed, this architecturally inspired contemporary residence has been designed and constructed with superior quality and attention to detail to provide excellence in executive family living walking distance to Tooronga station, Malvern Village, schools and freeway access.
Behind a distinctive timber door, wide oak floors and high ceilings are featured in the entrance hall and generous open plan living and dining room with a premium Gaggenau kitchen boasting stone benches, integrated fridge/freezer and butler's pantry. Glass sliders open the living to a private north-facing garden and large entertaining deck. A downstairs bedroom or home office with robes and a stylish bathroom complement the lavish main bedroom with walk in robe and designer en suite, two additional bedrooms with robes and desks, a retreat and deluxe bathroom, all upstairs.
Defined by customized finishes and natural light, this stunning domain also includes an alarm, keyless entry, video intercom, zoned heating and cooling, laundry and internally accessed double garage.
Enquire about this property
Request Appraisal
Welcome to Malvern 3144
Median House Price
$2,823,500
2 Bedrooms
$2,040,000
3 Bedrooms
$2,388,000
4 Bedrooms
$3,275,500
5 Bedrooms+
$4,475,000
Malvern, located just 8 kilometres southeast of Melbourne's CBD, epitomises suburban sophistication and elegance.























