Sold9/2A Bentons Road, Mount Martha
Great townhouse in perfect beachside location
Well-presented and wonderfully private within the classy Martha Shores complex this property is low-maintenance inside and out to maximise every minute of its outstanding location, the perfect choice for investors, professional couples, downsizers or retirees. Just footsteps to the Esplanade and a leisurely stroll to pristine beaches, spectacular clifftop walks, shops and cafes this impressive 2-storey townhouse is ideal for buyers who have been wanting to enter the coastal market.
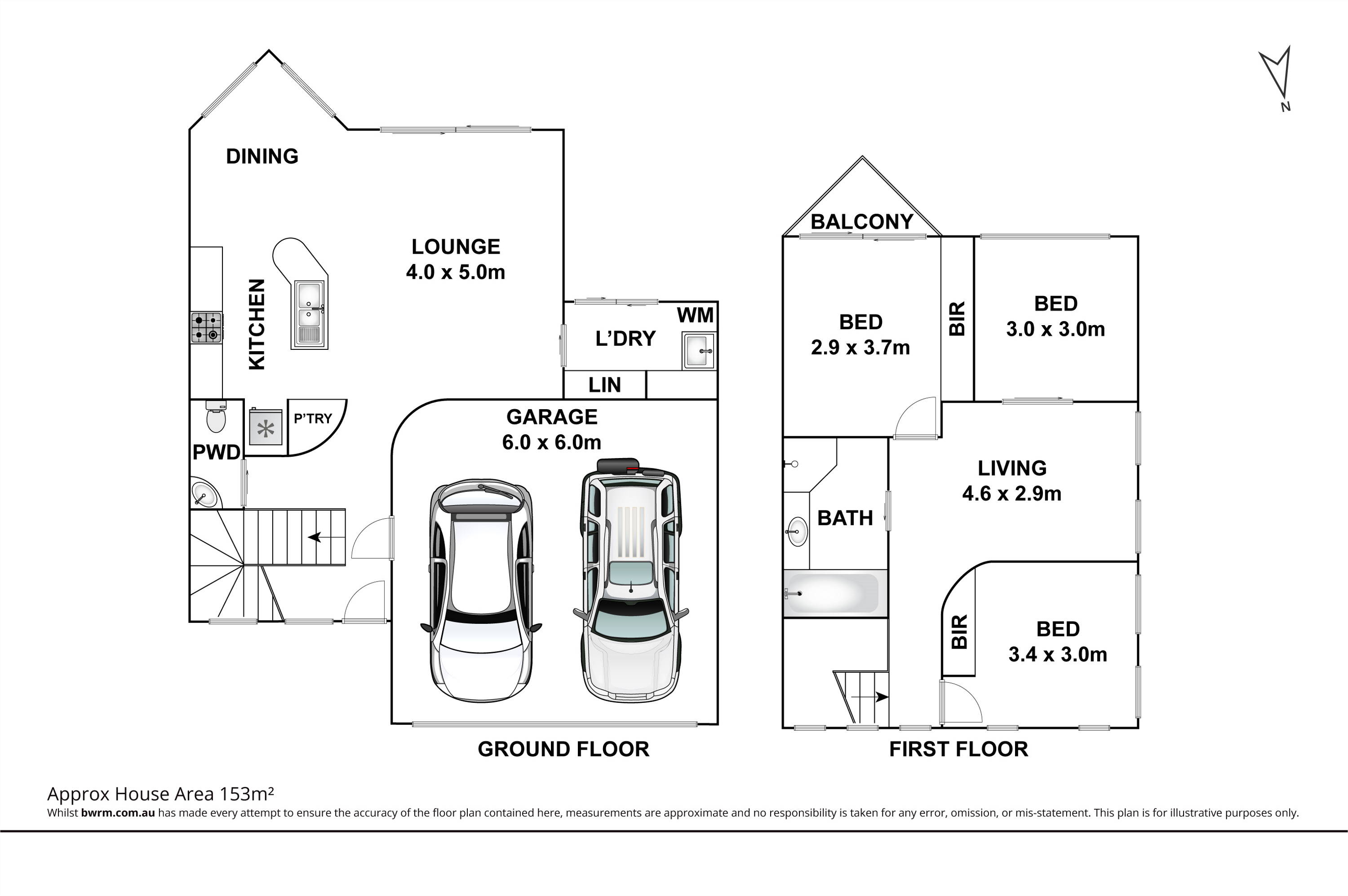
The main living area lies on the ground level and features lovely high ceilings, entry powder room and a functional open plan kitchen with gas cooking, wall oven and new floor tiles. A delightful courtyard garden makes for a great place to relax with a good book or entertain friends, while the sunny front patio is just the spot for morning coffee.
Upstairs there are 3 comfortable bedrooms (or 2 + study) including a master with private balcony and tantalising bay glimpse, served by a cleverly designed 2-way ensuite bathroom. A casual lounge with split-system air conditioning is located between the bedrooms and would make the perfect parent's retreat or 2nd living area for visitors.
Extras include a large laundry with linen press, steam cleaned carpets downstairs, ducted heating & cooling, a double garage with direct internal access with additional offroad parking space for 2 vehicles as well as visitor's parking.
Positioned between Mt Martha and Mornington shopping villages, close to Benton's Square, the Dava Hotel and Dava Drive shops and a stone's throw to Birdrock beach, this is a brilliant investment or lifestyle opportunity that will be snapped up by a savvy buyer! Don't delay, call Joel Hood or Adrian Calcedo today to inspect.
Enquire about this property
Request Appraisal
Welcome to Mount Martha 3934
Median House Price
$1,450,000
2 Bedrooms
$1,400,000
3 Bedrooms
$1,161,000
4 Bedrooms
$1,600,000
5 Bedrooms+
$2,300,000
Mount Martha, situated approximately 60 kilometres southeast of Melbourne's CBD on the Mornington Peninsula, offers a mix of beachside charm and suburban comfort.



















