Sold85 Albion Road, Ashburton
Sun-Drenched c1959 Icon
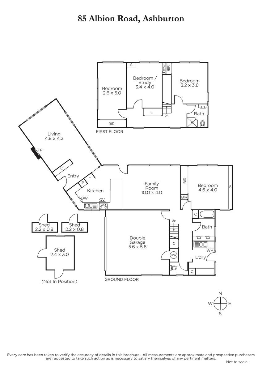
Designed in c.1959 by acclaimed architect Marcus Norris with a firm focus on natural light and garden outlooks, this sensational solid brick residence's stylishly presented dimensions deliver all the requirements for modern family living within an idyllic private garden setting.
Greeted by beautiful garden views from the very first moment, large picture windows allow natural light to flood the living spaces every moment of the day. The expansive sitting room with the original fireplace, the equally generous family room and superbly appointed kitchen open to a broad mid-century style bluestone terrace and the glorious leafy north-facing garden shaded by a magnificent Catalpa Tree. On the same level there is a double bedroom with built in robe and stylish bathroom while upstairs accommodation comprises three additional bedrooms and a chic bathroom. The laundry opens to a paved rear utility garden with 3 garden sheds.
Only moments to Gardiner's Creek, bike trails, Darling and Alamein stations, Ashburton Village, schools and freeway access, it includes an alarm, ducted heating, 5 RC/air-conditioners, ducted vacuum, garden lighting, automated irrigation, storage and internally accessed double garage.
Enquire about this property
Request Appraisal
Welcome to Ashburton 3147
Median House Price
$1,973,750
3 Bedrooms
$1,676,250
4 Bedrooms
$2,110,250
5 Bedrooms+
$2,260,000
Ashburton, situated about 12 kilometres southeast of Melbourne's CBD, is a suburb that seamlessly merges its historical origins with modern living and a dynamic real estate market.


















