Sold84 Asling Street, Brighton
Character and Charm on 1123sqm of Land
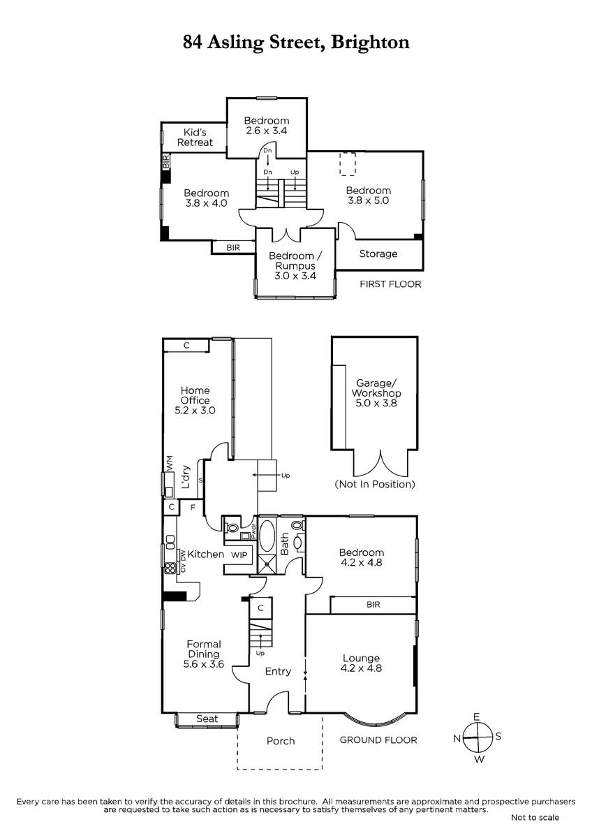
Become the proud owner of this superb 1920s home on 1123sqm (approx.) of land in a first-class location, around the corner from Martin Street's cafes, restaurants, shops and Gardenvale train station. The charm of this two-storey home starts with its beautiful street appeal, continues inside to reveal architectural elegance, and boasts a large backyard that's perfect for visionary contemporary living to take shape. Just one family has owned this home for the past 50 years, and now it can be yours for a new era of refined living. It features three living zones, four bedrooms and a self-contained large home office/fifth bedroom with its own entrance.
Kids will love the attic playroom, the kitchen and bathroom are updated, and it's ready for you to move in and enjoy the space and potential (STCA). Extend into the deep rear garden, put in a pool, and still have plenty of space to create idyllic outdoor living. Families love this ultra-convenient neighbourhood, around the corner from St James Primary School and Star of the Sea College, an easy walk to Elsternwick Primary School, and minutes from Firbank and Brighton Grammar Schools, childcare centres and preschools.
If it's lifestyle destinations you're looking for this is a brilliant Brighton base. Start the day with a beach walk or bay ride, grab a coffee at any of the cafes metres away, and love living a short walk away from a night out at any one of Martin Street or Bay Street's restaurants and bars.




















