Sold68 Weatherall Road, Cheltenham
Luxury Estate with Magnificent Golf Views
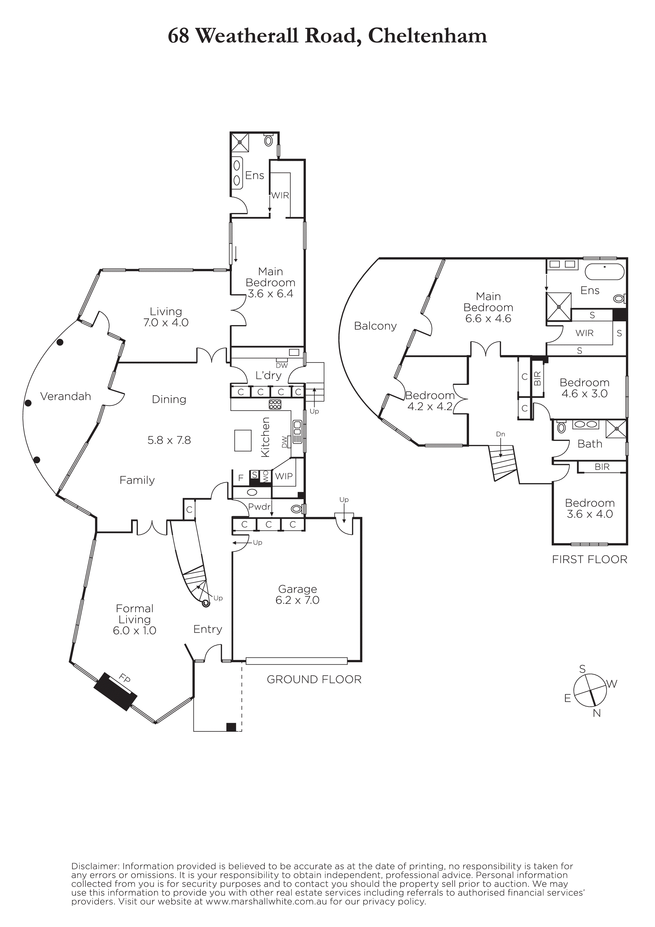
Feel like you’ve escaped to a luxury country estate when you arrive at this spectacular home and garden bordering Royal Melbourne’s golf course. Set behind a high front fence and surrounded by exquisite greenery, the beautifully renovated five-bedroom home makes the most of its far-reaching views and a gate onto of one the world’s best golf courses. A stylish revival brings fine design to a grand-scale lounge with huge windows to admire the magnificent garden and beyond, a stone-walled fireplace, and exposed trusses. The luxe family and dining room is just as impressive with another wonderful view as far as the eye can see. This is the perfect entertainer’s retreat, with a games room looking out to the pool and spa, a gourmet kitchen with two new Smeg ovens, an induction cooktop and wine fridge, and plenty of deck and garden space to relax. Everyday living is exceptional with the choice of a new ground-floor parents’ wing or upstairs retreat with luxe ensuites and outdoor access, plenty of storage including a large walk-in pantry, and ducted heating, air conditioning, and split-system air conditioners. Fine finishes include calming paint hues, deluxe wallpaper, gloss and encaustic tiles, and newly sanded timber floors. Outside is beautifully landscaped and benefits from garden irrigation, there’s a video intercom, security cameras, remote-control gates, and a double garage with keyless entry. Minutes from Mentone’s Grammar Schools and metres from a neighbourhood café, this is a once-in-a-lifetime retreat where you can see and hear birdlife, wake up to the beauty of nature all around you, and enjoy this exceptional lifestyle hideaway.
Enquire about this property
Request Appraisal
Welcome to Cheltenham 3192
Median House Price
$1,269,000
2 Bedrooms
$988,875
3 Bedrooms
$1,180,000
4 Bedrooms
$1,410,000
5 Bedrooms+
$1,455,000
Cheltenham, about 19 kilometres southeast of Melbourne's CBD, is a vibrant suburb known for its family-friendly atmosphere and diverse real estate offerings.


























