Sold6 Mcilwrick Street, Windsor
Warehouse Allure, Wondrous Location
Inspections strictly by private appointment only. Please contact the listing agent to schedule a time.
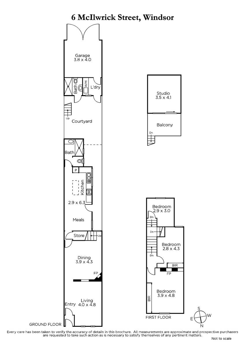
Idyllically positioned on the edge of Chapel Street's dynamic Windsor end with its vast array of restaurants, bars and shops and Windsor station, this eclectic solid brick Victorian residence has a definitive warehouse style edge blended with sleek contemporary style. Impressively proportioned with a fabulous freestanding apartment or home office and garage, there are also plans drawn up for a designer extension if required (STCA).
Bathed in northern light, the spacious living room exudes rustic charm with its tongue and groove ceilings, exposed brick feature walls and dark timber floors. The adjacent atmospheric dining room also features dark timber floors, high ceilings and an open fire. Stairs lead up to a generous main bedroom with open fire and built in robe and two additional bedrooms. Polished concrete floors flow through the large gourmet kitchen superbly appointed with a Belling double oven, stone benches, recycled timber breakfast bar, casual dining area and a stylish bathroom beyond. A covered walkway leads out to a private bluestone paved courtyard and the freestanding apartment comprising a garage accessed via a wide rear lane, chic bathroom and laundry and on the level above, a large bedroom/studio or home office opening to a wide covered north-facing balcony.
An ideal home for now with exciting future potential.
Enquire about this property
Request Appraisal
Welcome to Windsor 3181
Median House Price
$1,403,000
2 Bedrooms
$1,267,750
3 Bedrooms
$1,582,500
4 Bedrooms
$2,182,500
Windsor, within the inner south-eastern suburbs of Melbourne, just 5 kilometres from the CBD, is a suburb that perfectly encapsulates the eclectic and dynamic spirit of the city.























