Sold6 Byron Street, Brighton
'St.Ives' Captivatingly Beautiful Family Oasis
"Inspections strictly by appointment during advertised times"
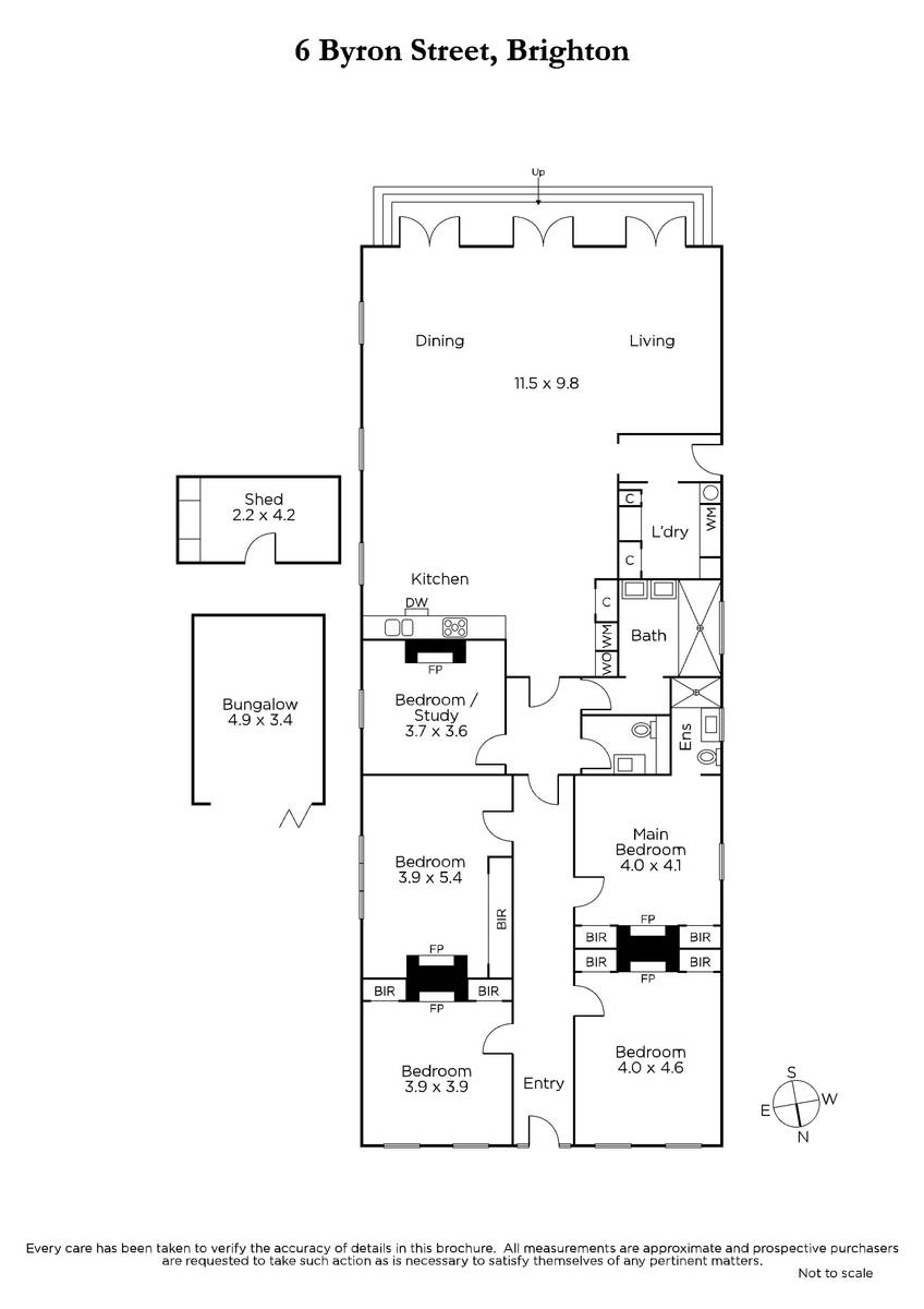
Beautifully re-imagined and painstakingly restored, this impressively-proportioned, 4-bedroom Victorian Villa on a huge (884 sqm approx.) block presents a captivating 21st century family oasis just moments from Bay Street. Dating back to the 1890s, St.Ives with its elegant façade featuring tuck-pointed brickwork, slate roof and cast-iron lacework stands picture-perfect on a sculptured lawn behind a tall picket-fence. Inside, a fresh white-on-white colour palette has breathed new life into the Victorian-era heroes including towering ceilings with ornate cornices and roses, multiple fireplaces and the decorative archway that spans the extra-wide central hallway. Luxury pendant lighting, fitted plantation shutters, and polished original Baltic floorboards further enhance the light-filled and airy spaciousness. In the mornings, sparkling ruby lights, emanating from the decorative etched-glass panels around the front door grace the entrance hall. The four bedrooms are all generously sized with BIRS, period features and leafy outlooks while the main bedroom has a luxe contemporary ensuite. There is also a study, family bathroom with double vanity and large walk-in shower, plus powder room. The expansive open plan family living zone has lofty recessed ceilings and French doors with internal shutters that open to the alfresco area. The modern galley kitchen, with granite benchtop, is equipped with Miele cooking appliances including gas cooktop and there is an adjoining laundry/utility room. Outside, expansive decking leads to a heated pool/spa and outdoor hot/cold shower. There is plenty of room for backyard cricket on the park-size lawn area, elegantly bordered by low-maintenance ficus and box hedge, plus a timber studio that could be used as a home office, gym or teenage retreat. Includes hydronic heating plus ducted air conditioning, sound system, shed/workshop, automated gates to the front paved driveway with space for two cars. Located in a quiet, low-traffic street, just a short walk to Brighton Primary School, Bay Street boutiques, restaurants and public transport.
Enquire about this property
Request Appraisal
Welcome to Brighton 3186
Median House Price
$3,278,333
2 Bedrooms
$2,066,833
3 Bedrooms
$2,509,166
4 Bedrooms
$3,611,666
5 Bedrooms+
$4,742,934
Brighton, located just 11 kilometres southeast of Melbourne CBD, is synonymous with luxury and elegance in the real estate market.



















