Sold58 Alexandra Street, South Yarra
Lifestyle Appeal with Limitless Potential
Just moments from Toorak Road's renowned shops and restaurants, Fawkner Park, Prahran Market and South Yarra station, this original double fronted freestanding Victorian residence represents extraordinary untapped potential in a coveted lifestyle location. A myriad of exciting options are available from renovating and extending to rebuilding as a new luxury home designed to your own tastes and requirements (STCA).
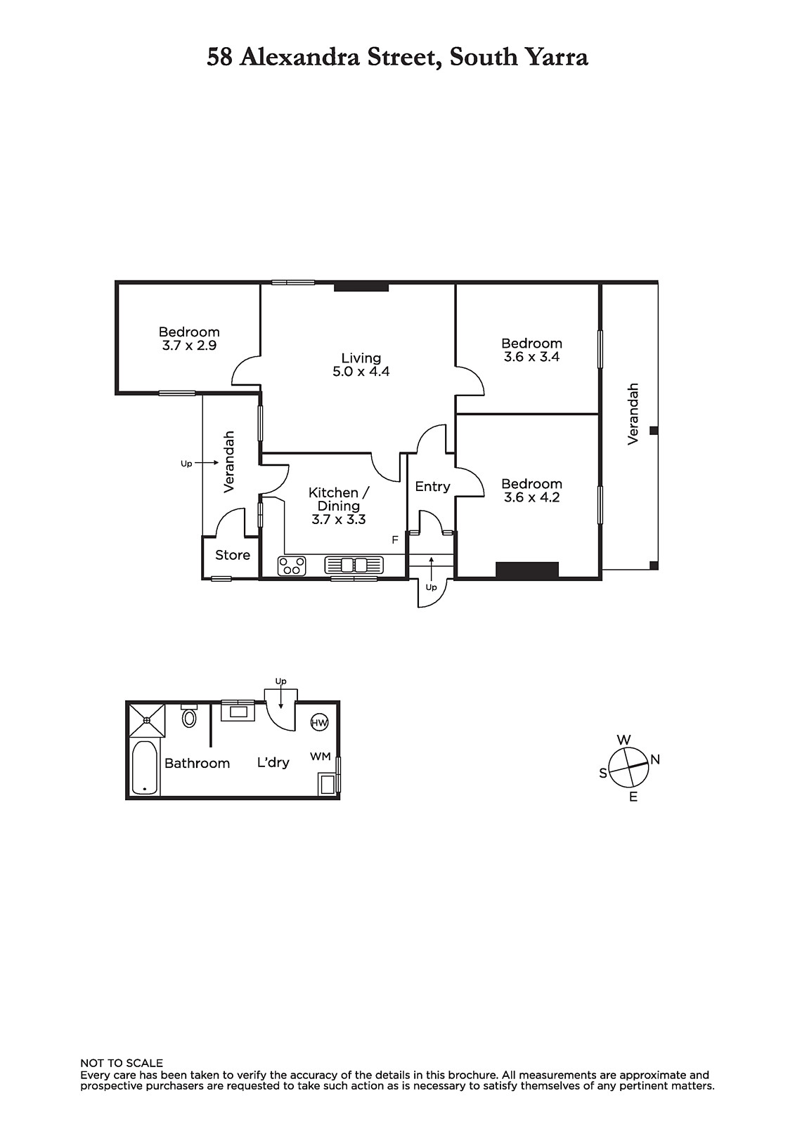
Behind the Hawthorn brick façade, the wide entrance hall introduces a generous sitting room, a separate living room and two double bedrooms all boasting original high ceilings. The large well equipped kitchen with space for casual dining opens to the good-sized garden with an outside bathroom and laundry.
A much loved home, now ready for its next chapter. Land size: 237sqm approx.
Enquire about this property
Request Appraisal
Welcome to South Yarra 3141
Median House Price
$2,176,000
2 Bedrooms
$1,324,000
3 Bedrooms
$2,305,834
4 Bedrooms
$4,020,000
5 Bedrooms+
$5,150,001
South Yarra, an iconic Melbourne suburb, is renowned for its sophisticated charm, merging high-end retail, exquisite dining, and vibrant nightlife with green spaces.











