Sold56 Fitzwilliam Street, Kew
A Chic Victorian with Stunning Contemporary Styling
Inspections by appointment between advertised times.
An attractive front garden featuring a line of three Crepe Myrtle trees and raised garden beds, sets the scene for the stylish contemporary interior which highlights this chic single-fronted Victorian cottage. Enhanced by a quiet, surrounding period streetscape in the heart of the Kew private school precinct.
Moments from the popular corner coffee shop, close to Kew Junction or Glenferrie Road shops, cafes and restaurants, including Leo's Fine Foods and Toscanos; with transport options also close by - offering a superb lifestyle opportunity for young professionals, families or retirees with an eye to capital gains prospects in an ultra-convenient location.
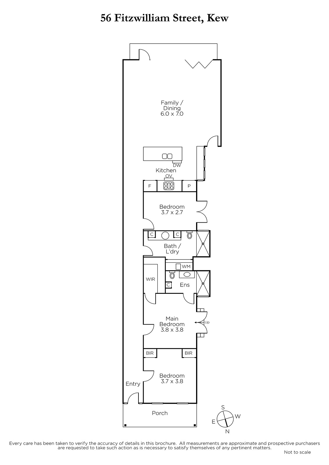
Designer styling is evident in the interior, which features high ceilings throughout and a long hall with wide oak floors flanking three bedrooms, main with a WIR and marble tiled ensuite and a sparkling family bathroom with a concealed laundry. Flowing to a spectacular living and dining precinct plus a sleek kitchen with Calacatta marble island bench and prestige Smeg, Miele and Bosch appliances and integrated fridge/freezer; plus full-height bi-fold doors opening to a deck and tropical garden delivering a tranquil oasis for year-round relaxing with family and friends in complete privacy.
Other features include ducted heating and cooling, plantation shutters plus front off-street parking. Land size: 293sqm approx.
Enquire about this property
Request Appraisal
Welcome to Kew 3101
Median House Price
$2,639,333
2 Bedrooms
$1,671,667
3 Bedrooms
$2,169,667
4 Bedrooms
$2,893,333
5 Bedrooms+
$4,418,333
Kew, positioned just 5 kilometres east of Melbourne's CBD, is renowned for its sophistication and elegance.





















