Leased48 St Johns Avenue, Camberwell
"Reyam-Horts" c1910 - Excelling in Period Appeal
This picturesque tuck point brick Edwardian family residence offers an enviable living environment and Camberwell lifestyle combined with an idyllic corner location surrounded by many period homes. Just moments from transport options, Camberwell Junction shopping, cafes, restaurants or the Rivoli Cinema; plus easy access to some of Melbourne's finest schools, including the highly regarded Camberwell Primary - perfect for families to enjoy the lifestyle benefits for which this area is renowned.
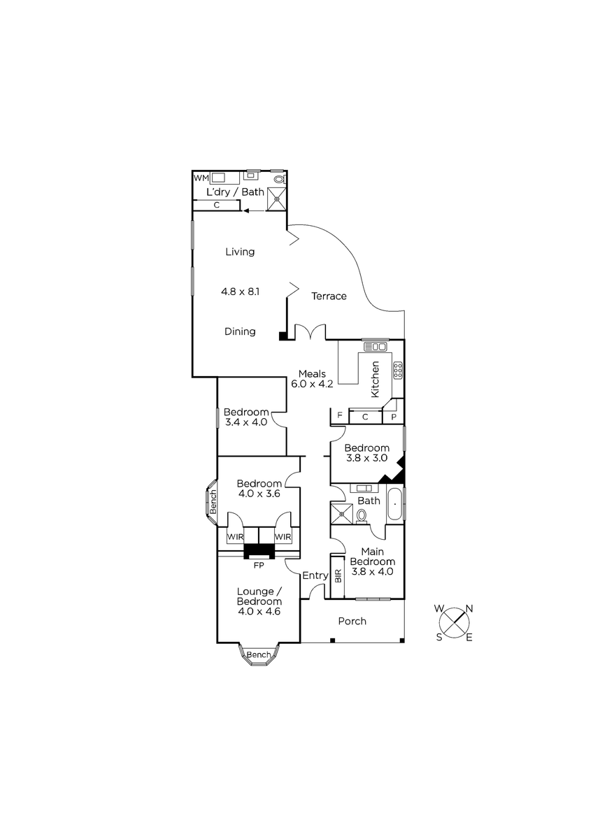
An appealing traditional façade complete with a picket fence, pretty front hedge-lined garden tessellated tile verandah precedes a stylish contemporary interior highlighted by a soft neutral toned decor and generous spaces. The home features a central hallway providing a vista to the rear garden and flanked by a sitting room with marble FP and bay window, four bedrooms or three plus a study, including a main with a dual access bathroom and a rear second bathroom and laundry. A spacious family living and dining area incorporating a sleek kitchen equipped with stone bench tops and Smeg and Bosch appliances opens through north-facing bi-fold doors to an alfresco terrace and private landscaped garden. Other features include alarm, ducted heating, R/C air conditioner (living room), large garden shed/storage & remote garage (walk through) plus off-street parking.
**To Inspect**
Please refer to the listed inspection times. If no inspection time is available or you are not able to make the listed time/s please click "Get in Touch" to request an Inspection Time or Contact Agent and register your interest.
**Please Note**
Open for Inspection times and property availability is subject to change without notice. We highly recommend registering for an inspection you are going to attend to avoid disappointment for cancellations. If you are registered for an inspection, you will be notified by SMS if the inspection is canceled.
**Caution**
Marshall White has exclusive leasing rights to this property. We do not advertise on Gumtree, Facebook Marketplace or any other social media platforms. Please beware of scammers and apply only via the official advertising link using the Snug platform.


















