Sold47 Mcilwrick Street, Windsor
A Sensational Lifestyle Sanctuary
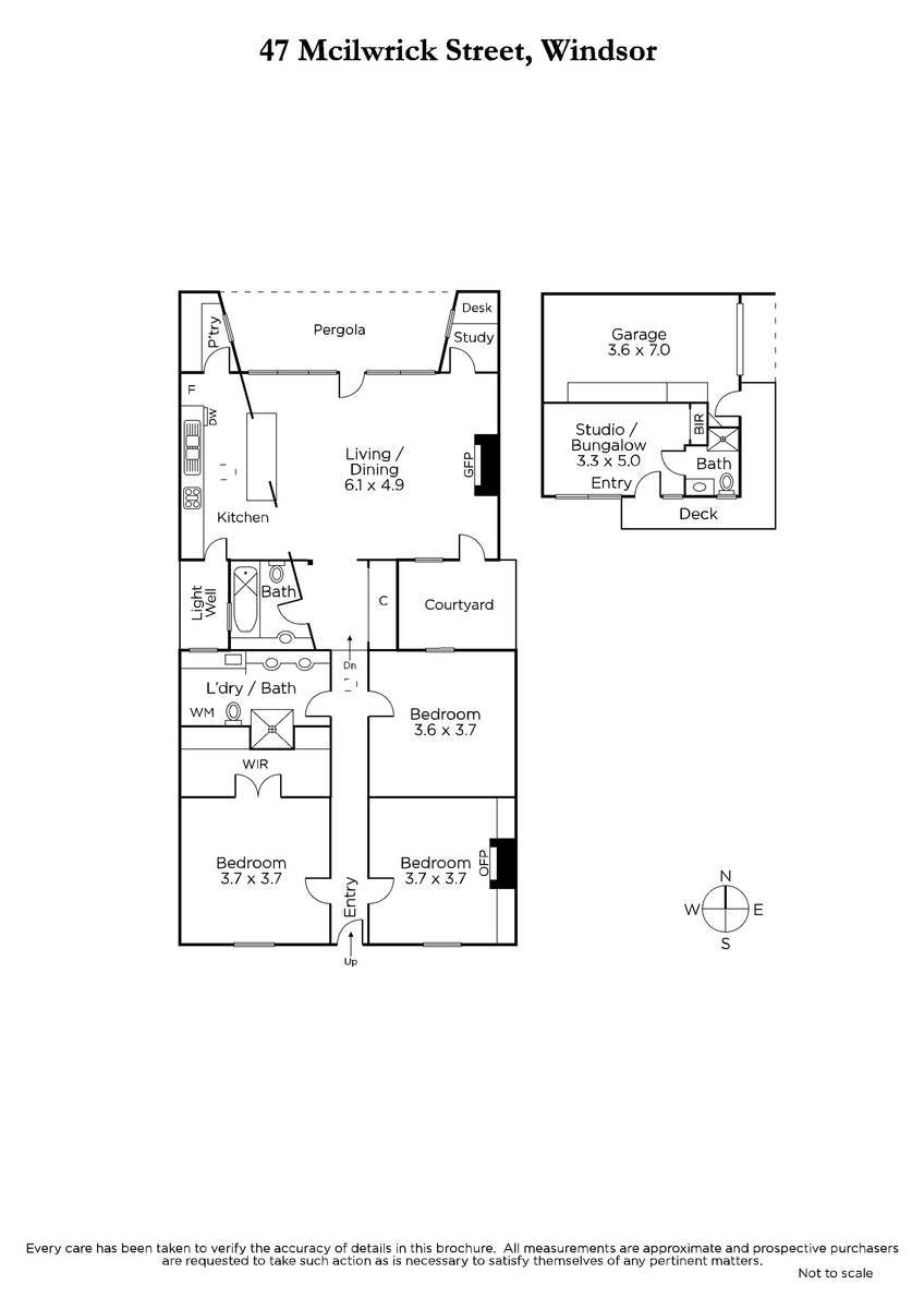
Perfectly positioned to enjoy the fabulous selection of restaurants and cafes at Chapel Street's Windsor end, this superbly presented Victorian residence's generous interior dimensions and captivating tropical garden setting deliver impressive family flexibility with an innovative sense of style.
An arched hallway featuring timber floors leads to three spacious bedrooms (one with walk in robe and one with open fire) and two stylish bathrooms. Polished concrete floors and a high raked ceiling are highlighted in the expansive living and dining room with gas fire and a well appointed modern kitchen. The living areas open to a deep private north-facing landscaped garden oasis with extensive decking, striking rock sculptures, a versatile freestanding studio or 4th bedroom with en suite and built in robe and a garage beyond accessed by a right of way.
Also includes an alarm, study nook, Euro- laundry and ample storage.
Enquire about this property
Request Appraisal
Welcome to Windsor 3181
Median House Price
$1,421,500
2 Bedrooms
$1,267,750
3 Bedrooms
$1,608,750
4 Bedrooms
$1,925,000
Windsor, within the inner south-eastern suburbs of Melbourne, just 5 kilometres from the CBD, is a suburb that perfectly encapsulates the eclectic and dynamic spirit of the city.




















