Sold47 Hunter Street, Malvern
Sun Filled Period Brilliance
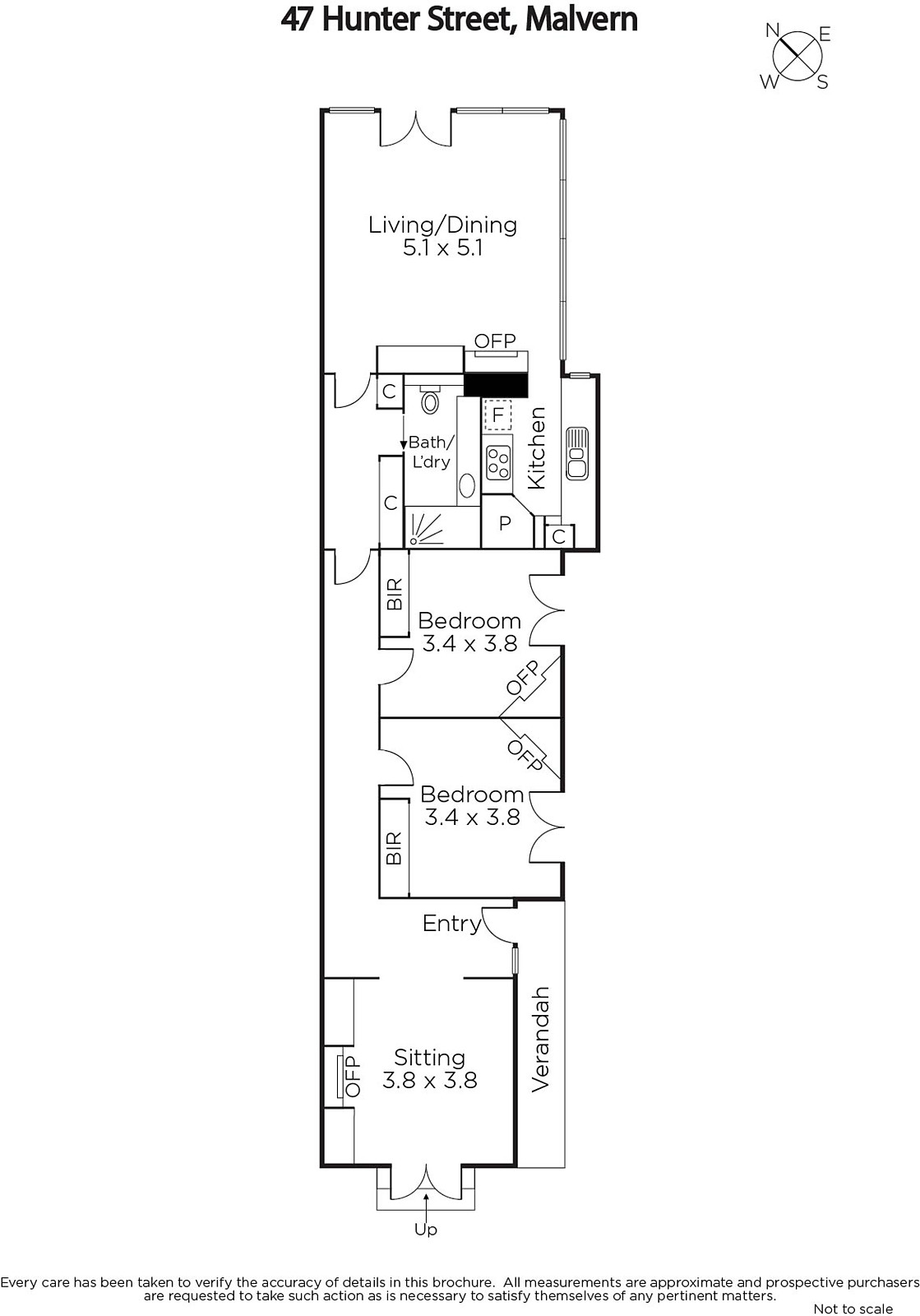
A delightful solid brick single fronted 2 bedroom Edwardian residence, enhanced by a sensational north facing rear orientation and brilliantly located within close proximity to Malvern Primary, Central Park, Glenferrie Road shops and public transport. Offering excellent accommodation with scope to further improve when ready, Baltic pine floors and tall ceilings convey the hallmarks of classic period charm. An entrance hall leads to an elegant sitting room featuring a pair of French doors and gas log fire, two double bedrooms with BIRs, and a fully tiled central bathroom with laundry facilities.
Adjoining a well-appointed modern kitchen with Bosch appliances is a generously proportioned living room with full length windows, open fireplace and split system cooling, providing an ideal space for light-filled informal living/dining space with doors opening out to a private north facing paved rear garden.
A well-hidden service area combined with ROW access for one car and a large storage shed complete this well-appointed layout.
Enquire about this property
Request Appraisal
Welcome to Malvern 3144
Median House Price
$2,990,083
2 Bedrooms
$2,106,667
3 Bedrooms
$2,454,667
4 Bedrooms
$3,357,084
5 Bedrooms+
$4,654,999
Malvern, located just 8 kilometres southeast of Melbourne's CBD, epitomises suburban sophistication and elegance.













