Sold47 Aintree Road, Glen Iris
Edwardian Appeal, Family Excellence
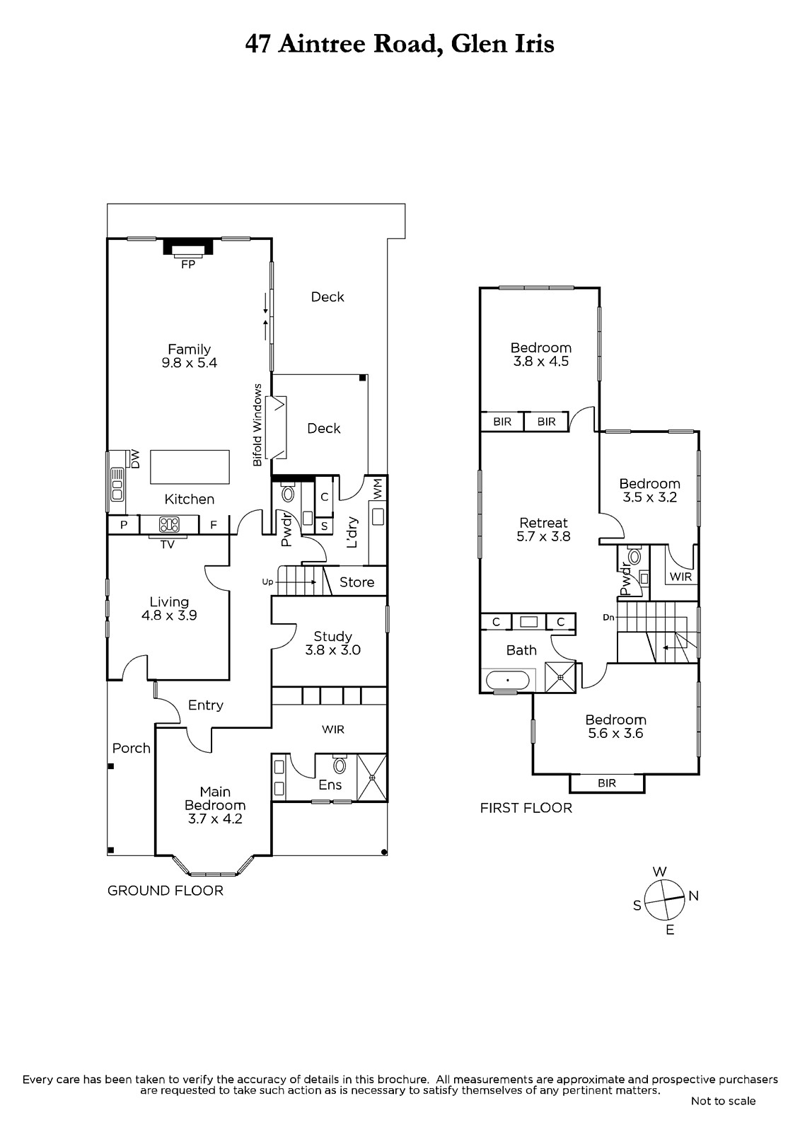
The captivating street presence of this classic c1910 Edwardian residence creates an irresistible first impression matched by dimensions that have been renovated and extended with wonderful designer style to provide outstanding family flexibility.
The traditional L-shaped hallway featuring high ceilings and stained Baltic pine floors introduces a generous sitting room with a bank of library shelves, a superb study or 5th bedroom and powder-room. High ceilings continue through the expansive open plan living and dining room with a gas log fire and sleek gourmet kitchen appointed with a 90cm Ilve oven, Miele dishwasher and stone benches. Bi-fold servery windows and glass sliders open to a large entertaining deck and the deep private northwest facing garden offering plenty of room for a pool and access to a rear right of way. The beautiful main bedroom with a huge walk in robe and chic en suite enjoys its own space downstairs while a sensational children's zone upstairs comprises three genuine double bedrooms with robes, a stylish bathroom and spacious retreat.
Desirably situated close to Malvern Village's shops and restaurants, Tooronga station, Harold Holt Pool and schools, it also includes ducted heating, RC/air-conditioning, laundry, wine cupboard, secure off street parking and auto gate.
Enquire about this property
Request Appraisal
Welcome to Glen Iris 3146
Median House Price
$2,593,750
2 Bedrooms
$1,528,750
3 Bedrooms
$2,220,250
4 Bedrooms
$2,708,750
5 Bedrooms+
$3,823,500
Glen Iris, situated approximately 10 kilometres southeast of Melbourne's CBD, is a well-established and affluent suburb known for its leafy streets, spacious parks, and prestigious schools.






















