Sold45 Fitzgerald Street, South Yarra
Exceptional in Scale and Elegance
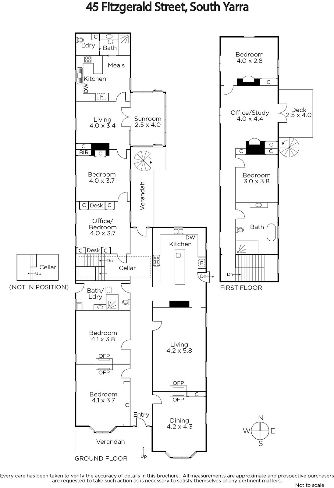
Rich in history and remarkable in scale, this gracious double fronted c1871 Hawthorn brick Victorian residence's beautifully presented dimensions deliver a uniquely versatile environment for any number of modern family requirements sited on 593sqm (approx) in a cul de sac location prized for both its utter tranquility and immediate proximity to Chapel St, this rare opportunity offers immeasurable family lifestyle appeal.
Glorious classic features including high ceilings, Baltic pine floors and magnificent fireplaces distinguish the elegant formal dining room and refined sitting room flowing from the double arched hallway. A stunning French style kitchen boasting timber benches and a double Lacanche oven overlooks the landscaped bluestone-paved private north-facing garden. Two gorgeous downstairs bedrooms (BIR & OFPs) and bathroom are matched upstairs by two additional double bedrooms, designer bathroom and retreat opening to a north-facing balcony. A separate wing with its own entrance comprising a 5th bedroom, office/study, stylish bathroom with Euro-laundry, modern kitchen, living room and sun-room is also ideal as in-law or adult child accommodation.
Superbly appointed with hydronic heating, RC/air-conditioners, ceiling fans, alarm, laundry, basement wine cellar, work-shop, remote double carport via ROW and front OSP.
All inspections by appointment during the advertised times.
Enquire about this property
Request Appraisal
Welcome to South Yarra 3141
Median House Price
$2,176,000
2 Bedrooms
$1,324,000
3 Bedrooms
$2,305,834
4 Bedrooms
$4,020,000
5 Bedrooms+
$5,150,001
South Yarra, an iconic Melbourne suburb, is renowned for its sophisticated charm, merging high-end retail, exquisite dining, and vibrant nightlife with green spaces.














