Sold45 Fintonia Street, Balwyn North
An Elevated Balwyn High Zone Lifestyle
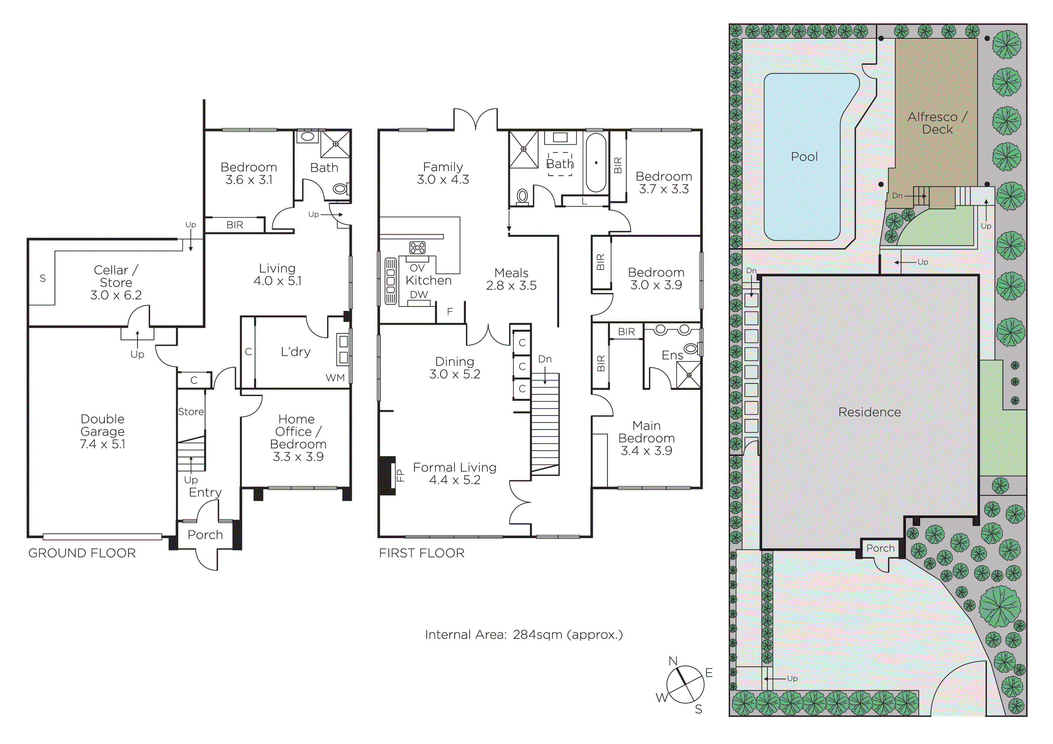
This contemporary residence, situated in the highly coveted Balwyn High Zone, boasts an impressive street presence and remarkable living and entertaining spaces. Whether you prefer unwinding on the expansive deck or enjoying the solar-heated pool, this home caters to families and friends alike. Its favourable Balwyn North location, in proximity to Greythorn amenities, further enhances its appeal.
Maintaining impeccable order, the home offers a spacious, light-filled interior across two levels. Soft pastel hues create a warm ambiance, complemented by ample natural light from picture windows and a preferred northern rear aspect. The ground level could serve as a separate retreat or extended family accommodation, encompassing a home office/bedroom, living room, bathroom, additional bedroom, and a versatile laundry space. The upper level encompasses a generous formal sitting and dining room, three bedrooms with built-in robes, the main with an ensuite, and a sky-lit fully-tiled family bathroom.
The sun-drenched family living and dining area, with a stylish timber kitchen equipped with premium Euro appliances, opens to the deck and pool in a private hedge-lined setting. Additional features include quality fixtures, ducted heating, refrigerated cooling, a feature stone open fireplace in the sitting/dining area, reverse-cycle air conditioning, overhead fans, ample storage, and auto gates leading to a remote double garage/storage with secure internal access and off-street parking.
Located within the Balwyn High zone, this property is complemented by its proximity to Greythorn shops and cafes, Boroondara Park Primary, Leigh Park, Koonung Creek Reserve, North Balwyn Village, and Westfield Doncaster. Convenient transport options and easy access to the CBD via the Eastern Freeway further underline the lifestyle credentials and investment potential of this property.
Enquire about this property
Request Appraisal
Welcome to Balwyn North 3104
Median House Price
$2,372,963
2 Bedrooms
$1,173,333
3 Bedrooms
$1,990,000
4 Bedrooms
$2,450,000
5 Bedrooms+
$2,950,834
Balwyn, located about 10 kilometres east of Melbourne's CBD, is a suburb within the City of Boroondara known for its picturesque streets, grand Edwardian and Georgian homes, and high-quality lifestyle.
















