Sold45 Edgevale Road, Kew
Elegant Victorian in Prized Location
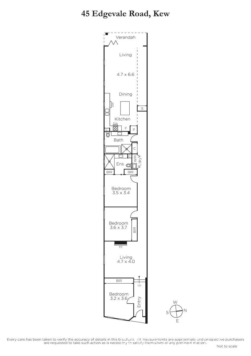
Nestled comfortably within a period streetscape, previous front-to-back renovations and recent refurbishing to this single-fronted, free-standing Victorian has created a stylish and deceptively spacious home. Providing a chic inner city lifestyle in a prized pocket of Kew.
Showcasing a traditional Victorian layout and finished to high standards, the home features high ceilings throughout, ceiling roses, leadlight cut glass windows and a long double arched hallway with polished hardwood floors. Flanked by a sitting room with OFP, three generous bedrooms with built-in robes, main with ensuite, pristine fully tiled family bathroom and a concealed laundry. Flowing to a light-filled, expansive living area with vaulted ceiling level windows and incorporating superb contemporary kitchen with granite benches, island bench and prestige Miele appliances. With floor-to-ceiling bi-fold doors opening to a rear deck, raised gardens and loads of space for indoor/outdoor alfresco dining or entertaining in complete privacy. Other features include Brivis ducted heating, reverse cycle air conditioner (living) and quality fixtures & fittings.
Conveniently located in the heart of the private school precinct, moments from the local Kupid coffee shop and close to Kew Junction or Glenferrie Road's fashionable shops, restaurants, cafes and Lido cinema. Plus nearby parklands and public transport for easy CBD access - all the lifestyle options likely to attract young professionals, families or retirees.













