Sold44 Durham Street, Richmond
The Epitome of Sophisticated Style
Inspections By Private Appointment. Contact Agent to book an inspection.
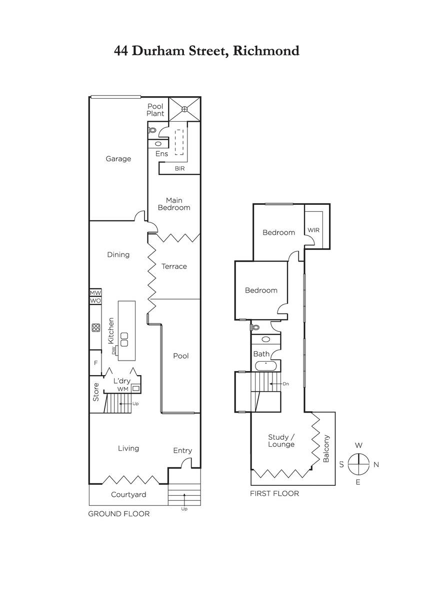
Showcasing inspired style and luxury, this freestanding architect designed residence's sophisticated design brilliantly maximises space, light and indoor-outdoor living in a sensational lifestyle location only metres to the Yarra River as well as Richmond and South Yarra's fabulous shops and restaurants.
A tall glass pivot door reveals a light-filled living room featuring a bluestone wall that runs the entire length of the home, high ceilings, oak floors and bi-fold doors to a private forecourt. Streaming with northern light, the sleek gourmet kitchen appointed with premium appliances, a coffee maker, Zip tap, integrated fridge/freezer and Calacatta marble benches overlooks the stunning heated pool. The adjacent dining area extends out through bi-fold doors to a north-facing entertaining terrace and the pool. The bluestone feature wall continues through the gorgeous main bedroom with a designer en suite, walk through robes and bi-fold doors also opening to the terrace and pool. Upstairs, there are two double bedrooms with walk in/built in robes, a stylish bathroom and a versatile retreat or home office with corner opening bi-fold doors to a northeast L-shaped balcony offering Yarra River views.
Perfectly positioned near the Yarra River bike trail, East Richmond and South Yarra stations, trams, McConchie Reserve and freeway access, it also includes an alarm, CCTV, C-Bus, smart AV, heating/cooling, 5 integrated TVs, keyless entry, solar panels, Euro-laundry and an internally accessed garage accessed via rear lane.
Enquire about this property
Request Appraisal
Welcome to Richmond 3121
- Median House Price- $1,395,167
- 2 Bedrooms- $1,175,000
- 3 Bedrooms- $1,564,833
- 4 Bedrooms- $2,100,000
Richmond is approximately 3 kilometres southeast of Melbourne's CBD, making it a conveniently located suburb for those looking to enjoy close proximity to the city's core while living in a vibrant community setting.





















