Sold42 Salisbury Road, Ashwood
Consider The Options – Redevelop Or Renovate
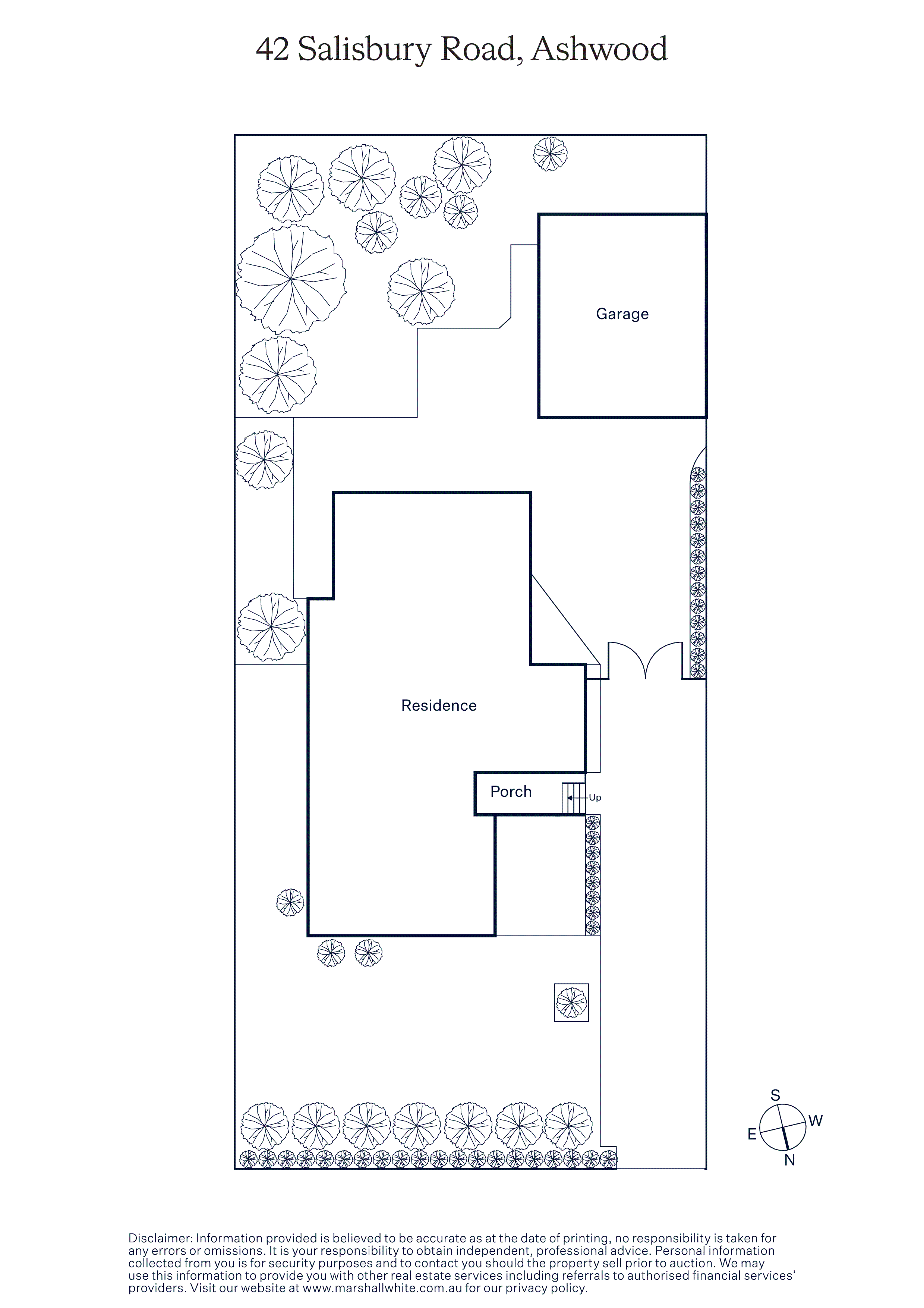
This property spanning 613sqm (approx.) offers an excellent opportunity for new home builders and Developers looking for a site for the construction of a new family home or twin town houses. Alternatively, renovators with vision and imagination and an eye on the future may look to renovate, update and extend the existing rendered brick family home in an area gaining in value due to regeneration. All works STCA.
The home in original condition comprises an entrance hall leadng to a sitting room, two bedrooms with built-in robes, a period-style bathroom and modern kitchen with quality appliances, dining area and a full-width informal living room with adjacent laundry. Opening to a paved outdoor area and the garden. Other features include an alarm, R/C air conditioner, overhead fans, double garage/storage and off-street parking.
The value of this property is underpinned by its location which will likely appeal to first home buyers and young families seeking both future prospects and convenience. Situated moments from Ashwood, Homesglen and Jingella Reserves, Ashburton Recreation Centre and sporting facilities. Plus it is only minutes from brilliant shopping and dining options such as those provided by Warrigal Road, Chadstone and Ashburton Village. Whilst numerous educational institutions including the upgraded Ashwood High School, Kingswood College, PLC, Box Hill Institute and Deakin University are all easily accessible by public transport; as is the CBD via the Freeway/Citylink or Jordanvile Trains.
Buyers should note the home presents in comfortable order throughout and could be occupied or continue to be leased while a decision on its future is made.










