Leased40 Tribe Street, South Melbourne
Timeless Elegance, Contemporary Comfort - Moments from Albert Park Village
This three-bedroom grand Victorian, superbly positioned within South Melbourne’s dress circle precinct, is simply breathtaking.
A wide hallway rich with period detail and solid hardwood floors sets the tone, while the generously proportioned Victorian rooms impress with both scale and architectural form.
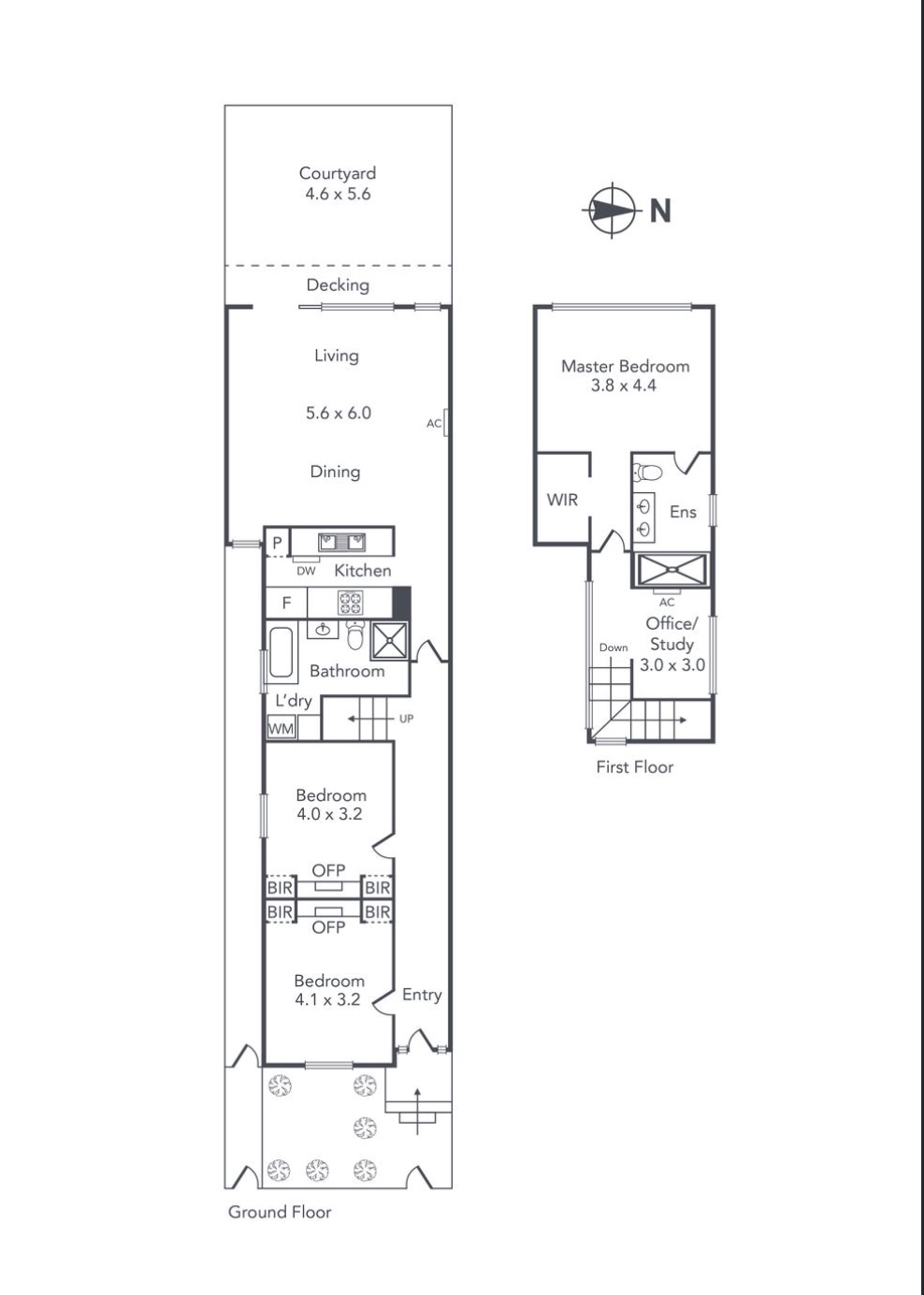
On the ground floor, two spacious, character-filled bedrooms are serviced by a large central bathroom with laundry facilities, a separate bath and shower, all presented in beautiful condition.
At the rear, the home comes to life with a wide, light-filled living and dining zone. The perfectly positioned kitchen, complemented by SMEG appliances, dishwasher and ample storage, seamlessly connects to the space.
Enjoy the lush, easy-care tropical garden backdrop — a tranquil setting to elevate everyday living.
Upstairs, the brilliant study space is perfectly suited to a work from home space or a cosy retreat.
The luxurious primary bedroom suite showcases a soaring raked ceiling, large windows, walk-in robe and ensuite with double shower, all enhanced by stunning city views across the rooftops.
Beautifully renovated throughout, the home features hydronic heating and split system cooling for year-round comfort. Perfectly positioned in a highly desirable street, it sits within one of Melbourne’s most sought-after suburbs — just moments from cosmopolitan Albert Park Village, the beach, Clarendon Street shopping precinct, the iconic South Melbourne Market, and with easy access to the CBD.
**To Inspect**
Please refer to the listed inspection time/s. If no inspection time is available or you are not able to make the listed time/s please click "Get in Touch" to request an Inspection Time or Contact Agent and register your interest.
**Please Note**
Open for Inspection times and property availability is subject to change without notice. We highly recommend registering for an inspection you are going to attend to avoid disappointment for cancellations. If you are registered for an inspection, you will be notified by SMS if the inspection is canceled.
**Caution**
Marshall White has exclusive leasing rights to this property. We do not advertise on Gumtree, Facebook Marketplace or any other social media platforms. Please beware of scammers and apply only via the official advertising link using the Snug platform.
Enquire about this property
Request Appraisal
Welcome to South Melbourne 3205
- Median Rental Price- $811
- 2 Bedrooms- $750
- 3 Bedrooms- $996
- 4 Bedrooms- $1,125
South Melbourne, situated just 2 kilometres from the heart of Melbourne’s CBD, is a vibrant and historic suburb known for its unique blend of cultural heritage, contemporary living, and dynamic community atmosphere.




























