Sold40 Longmore Street, St Kilda West
A Rare Find in an Unbeatable Location
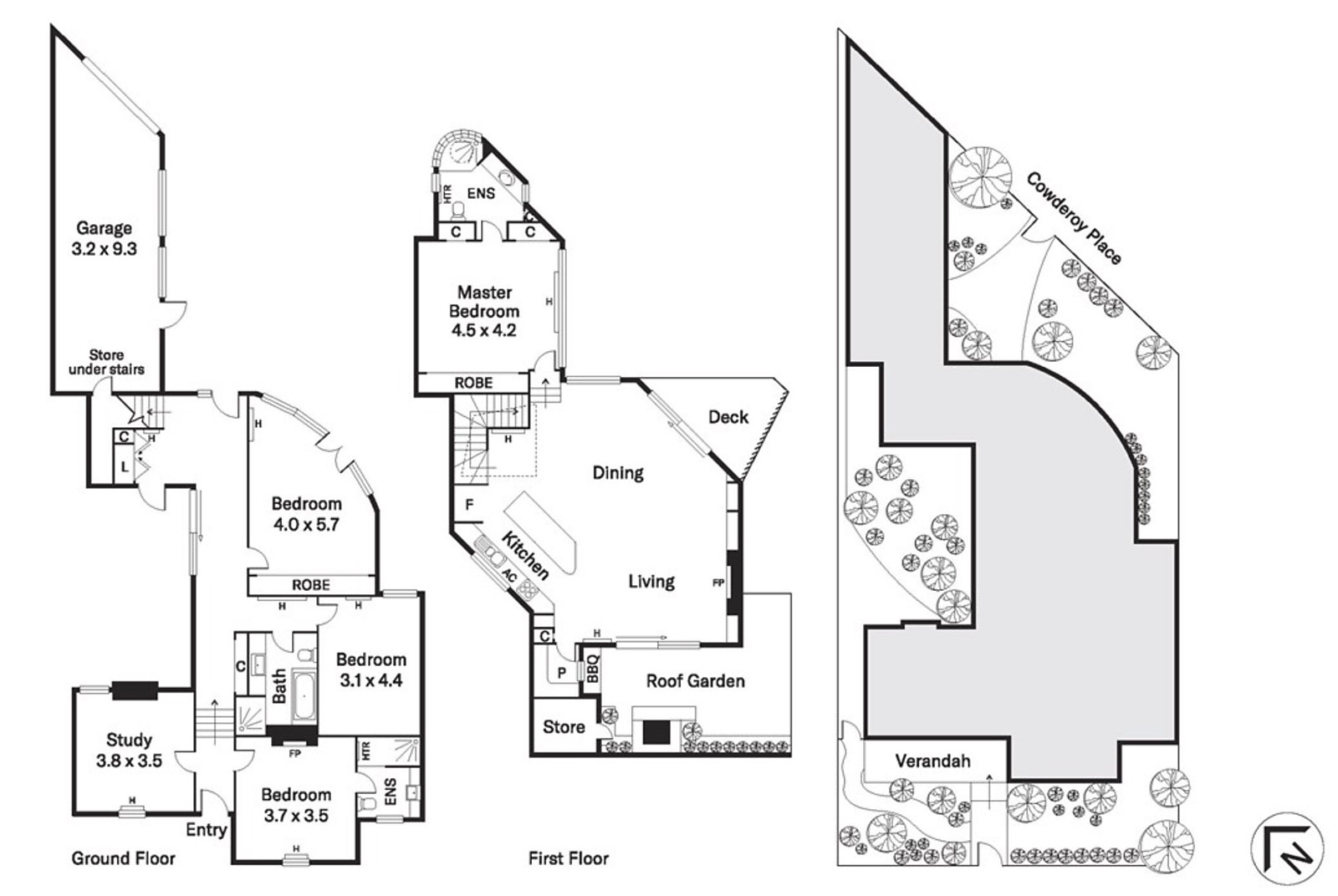
Set on a generous allotment of 301sqm (approx.) this charming double-fronted Victorian residence provides captivating period elegance, inspired contemporary style and flexible family accommodation, Ideally situated in a quiet cul de sac, with parkland at one end, metres from the beach, Albert Park Lake, Middle Park Village, light rail, schools, Fitzroy St and Cowderoy Cafe and playground.
The well designed layout offers a sense of privacy and tranquillity, timber floors flow through the entrance hall past a generous bedroom with ensuite, a further three bedrooms share a central bathroom. Upstairs comprises a state of the art gourmet kitchen with walk in pantry, expensive open plan living and dining area with large terrace providing seamless indoor-outdoor entertaining and un-interrupted park views. A master retreat is complimented with built in robes and chic en-suite.
Other features include three ground level garden areas; secure garage parking for two cars and solar panels, this house is truly an oasis of serenity in the inner city.
Enquire about this property
Request Appraisal
Welcome to St Kilda West 3182
Median House Price
$2,602,500
Nestled along the shores of Port Phillip Bay, St Kilda West is a captivating suburb that seamlessly combines seaside charm with the vibrancy of inner-city living. Characterised by a mix of period homes and modern residences, the suburb exudes a unique coastal sophistication.




















