Sold37 Langridge Street, Middle Park
Instant Appeal, Idyllic Position on 195sqm approx.
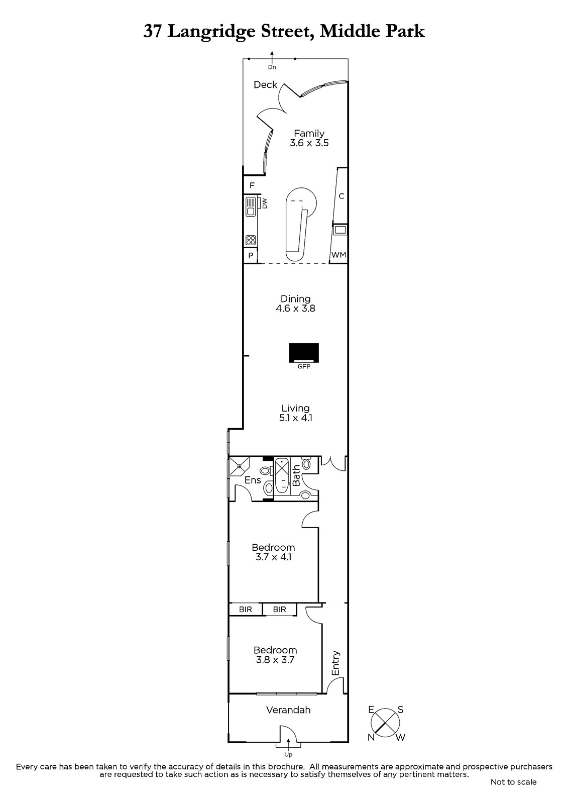
In a perfect position to walk to the beach, Albert Park Lake, Village shops and restaurants, schools and trams, this charming solid brick period residence delivers light-filled and stylishly presented living to enjoy now while also providing exciting scope to further update and extend upwards if desired (STCA). Limed Baltic pine floors add a fresh inviting touch to the wide hallway, generous living room and separate dining area. The spacious and well appointed kitchen and second bright living room opens out to a covered deck and private paved garden offering off street parking via rear right of way. The gorgeous main bedroom with built in robe and en suite is matched by a second double bedroom with built in robe and a pristine bathroom. Offering enticing lifestyle and investment rewards, it also includes Euro-laundry, pull down attic storage and garden shed.
Enquire about this property
Request Appraisal
Welcome to Middle Park 3206
Median House Price
$2,779,500
2 Bedrooms
$1,716,875
3 Bedrooms
$2,445,000
4 Bedrooms
$3,942,500
Between the city of Melbourne and the expansive waters of Port Phillip Bay, Middle Park is a prestigious suburb known for its well-preserved Victorian and Edwardian architecture.
















