Sold35 Bevan Street, Albert Park
Elite Village Living, Endorsed Plans
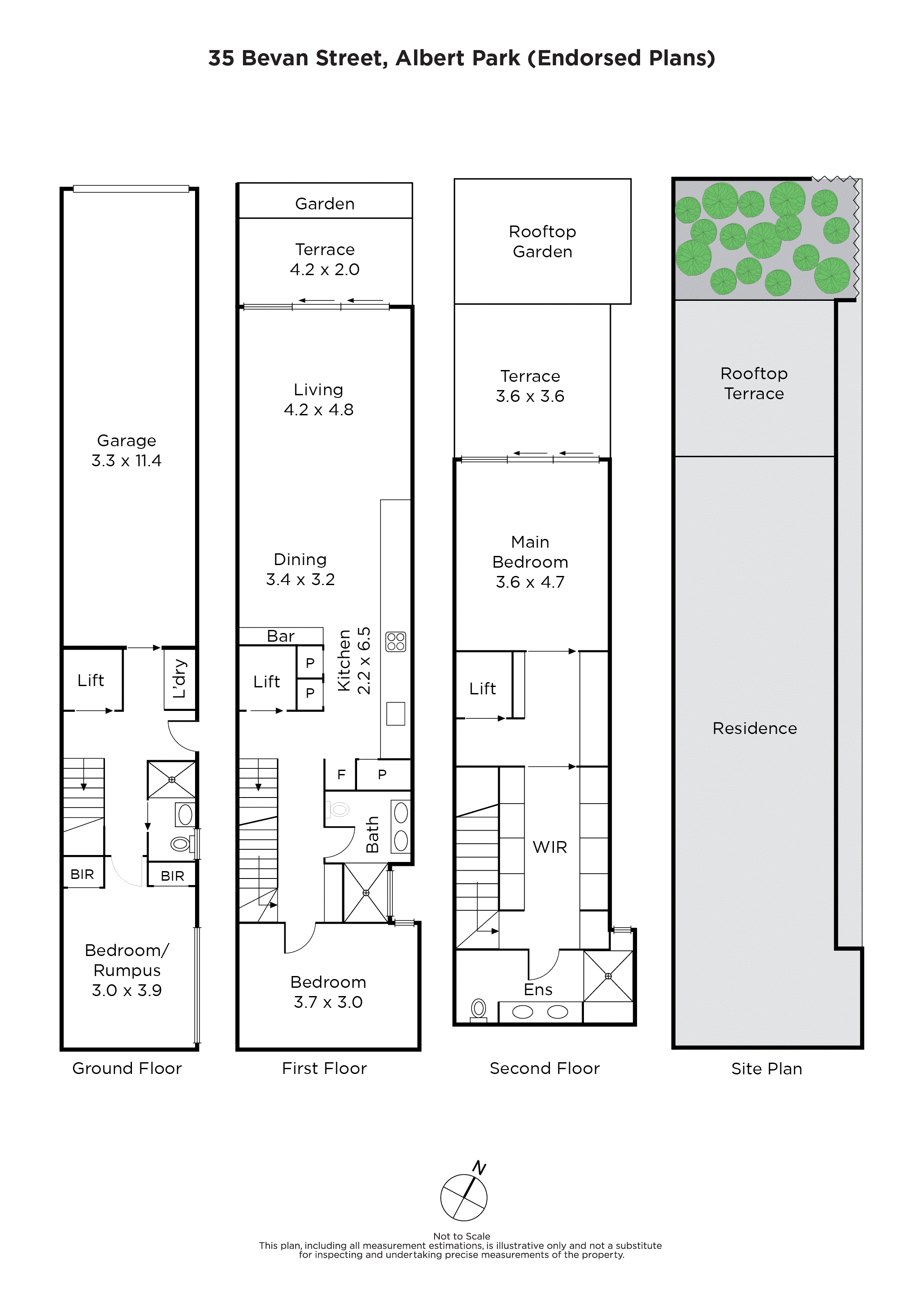
A genuine rarity in the heart of Albert Park Village, this vacant block of land invites endless possibilities, endorsed plans and permits for an architectural tri-level residence, an existing crossover and an exclusive lifestyle amongst the area’s elite. Positioned on the outer border of St Vincent Gardens, just one block from the village shops, trams, and moments from South Melbourne Market, MSAC and premium schooling options, this north-facing block is the gateway to prestige living.
Endorsed plans designed by the award-winning Melbourne firm Finnis Architecture provide an opportunity that combines effortless luxury, secure double garaging, lift-connected spaces and alfresco living on every meticulously designed level. Maximising space and light beyond a sleek, contemporary facade, a seamless aesthetic is matched by a functional and versatile interior, with a proposed three-bedroom, three-bathroom interior showcasing impressive proportions, an air of sophistication and a beautifully landscaped setting that takes in the all-day sun.
Properties of this magnitude in such a tightly-held park-side position are scarce, and although exceptional, this significant landholding also provides the option to architecturally design and build your own grand, modern domain to your own specification (STCA).
Enquire about this property
Request Appraisal
Welcome to Albert Park 3206
Median House Price
$2,440,000
2 Bedrooms
$1,677,500
3 Bedrooms
$2,518,750
4 Bedrooms
$3,762,500
Albert Park, nestled just 3 kilometres from Melbourne’s CBD, is a picturesque suburb known for its blend of historic charm and modern amenities.














