Sold34 Henry Street, Abbotsford
Expressions of Interest close Tuesday 31st October at 5pm
Exciting Opportunity in a Lifestyle Hub
Enviably positioned to enjoy a cosmopolitan Abbotsford lifestyle close to Collingwood station, a host of fabulous restaurants, bars, cafes and shops and Yarra Bend Park, this freestanding period residence offers an exceptional opportunity to renovate, extend or rebuild (STCA).
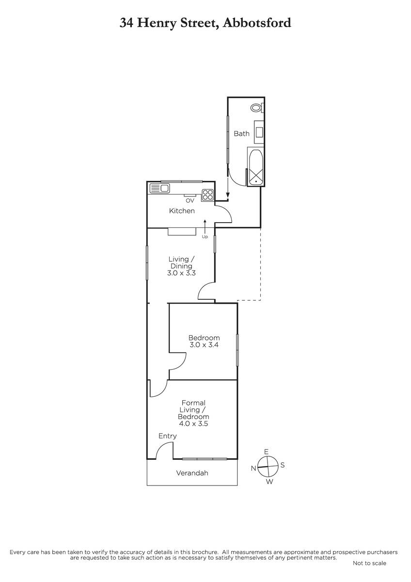
Currently comfortably presented with a generous living room (or 2nd bedroom), bedroom, bathroom, laundry, kitchen and dining room, it is ideal to lease out or live in while considering the many options. The site has both the potential for residential and commercial zoning if a different path was to be considered.
In addition, there are approved plans available to build an architecturally spectacular and luxurious 6-level 4-bedroom contemporary residence with lift, rooftop pool and terrace. The design incorporates generous living/dining area with top of the range kitchen and balcony, a basement recreation space with bar and gym, both a study zone and home office, parking for 2 cars and the sensational rooftop BBQ terrace with picturesque acrylic bottom pool. From the second level upwards, magnificent city views will be enjoyed.
This is an exceedingly rare opportunity to put your own stamp on an inner urban period classic.



















