Sold31 Wrixon Street, Kew
Sackville Ward, Beautiful Parcel of Land on 737sqm (approx.)
Brimming with the grace and grandeur of the era, modern family comfort and the promise of an exciting future, this illustrious solid brick Victorian residence is magnificently positioned amidst a deep private northwest garden in the coveted Sackville Ward (STCA).
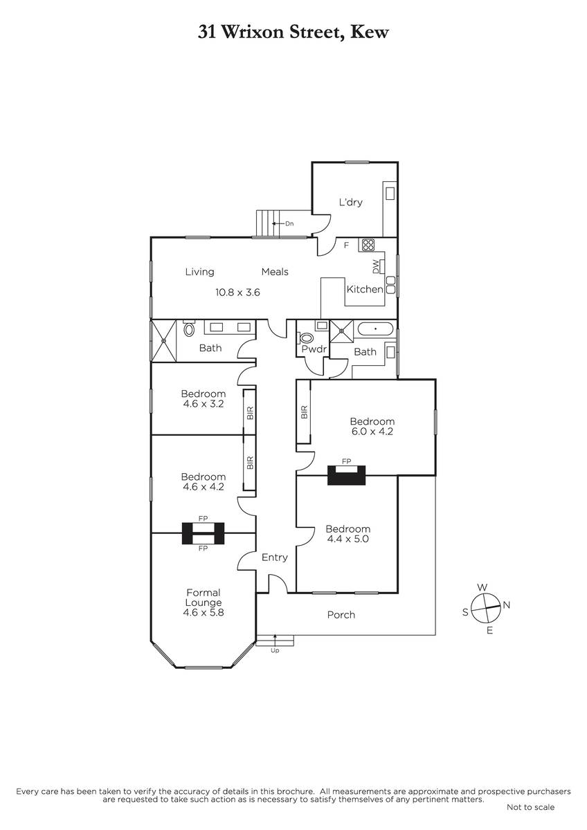
A glorious arched hallway introduces an elegant sitting room with majestic ceiling, marble fireplace and a beautiful bay window. Two generous bedrooms with marble fireplaces and built in robes and two additional double bedrooms are complemented by two stylish bathrooms. Natural light streams through the inviting living/dining room and well-equipped modern kitchen. The deep private west-facing garden accesses an under-house storeroom and large cellar space. Immaculately presented for family enjoyment while considering the enormous potential to extend and further update in the future.
Enviably situated close to Auburn Village and station, Cotham Road trams, Kellett Reserve and leading schools, it includes ducted heating, RC/air-conditioner, laundry, garden shed and double carport. Land size: 737sqm approx.
Enquire about this property
Request Appraisal
Welcome to Kew 3101
Median House Price
$2,666,500
2 Bedrooms
$1,575,000
3 Bedrooms
$2,173,500
4 Bedrooms
$2,926,250
5 Bedrooms+
$4,580,000
Kew, positioned just 5 kilometres east of Melbourne's CBD, is renowned for its sophistication and elegance.




















