Sold31 Derby Street, Kew
Elegant Victorian With Contemporary Finesse
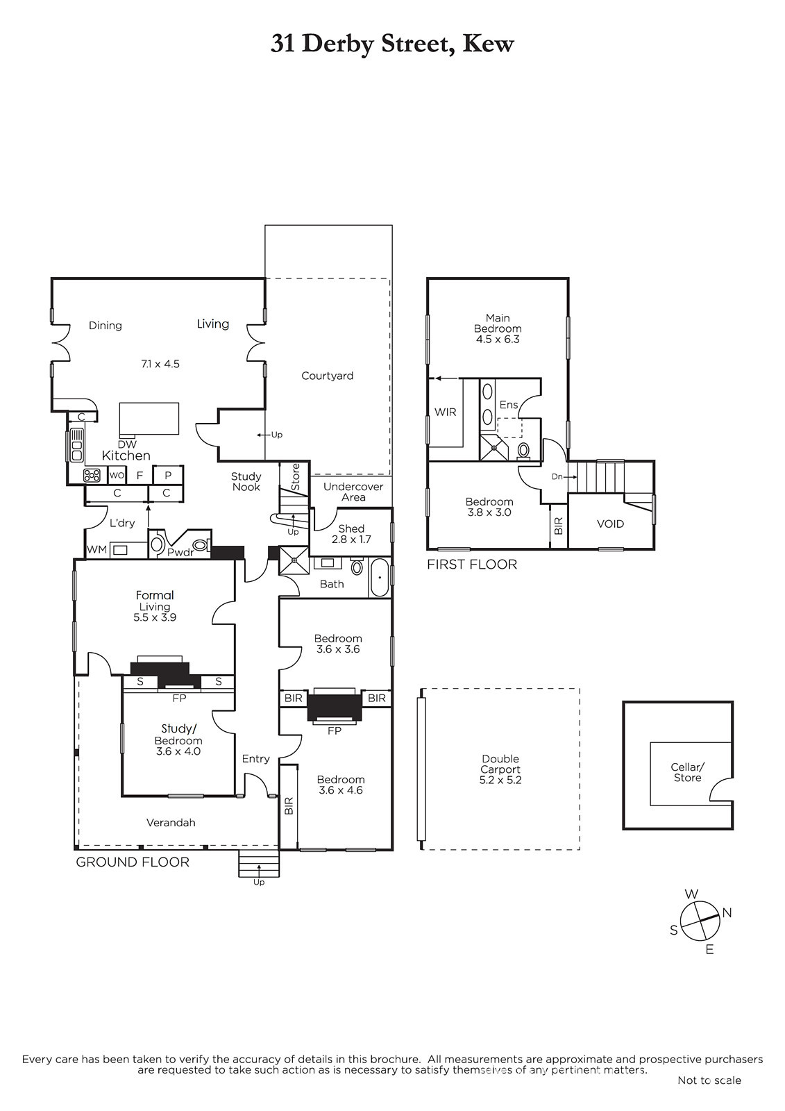
A stylish ambience, attention to detail plus quality finishes are the hallmarks of the superb renovations and two-storey extension which have transformed this double fronted Victorian home into a stunning, spacious, family living environment near Kew Junction. Gracing an elevated position behind a picket fence and neatly maintained gardens this immaculately presented home delivers a stunning living environment whilst maintaining authentic Victorian attributes in a contemporary context.
Highlighted by a crisp white, light-filled interior it features an arched hallway with Baltic Pine floors flowing past a study, two downstairs bedrooms, formal sitting room, period-style bathroom, laundry and powder room. Leading to the split-level extension with second level ceiling, large windows and tree-top views; incorporating a further two upstairs bedrooms including the main with a WIR and a period-style ensuite. An expansive family living and dining room opens on both sides through French doors and includes a stylishly appointed kitchen with granite bench-tops and premium Smeg and Bosch stainless steel appliances - perfect for indoor or outdoor entertaining in a private, hedge-lined, northern courtyard with water feature and remote awning. Other comprehensive features include ducted heating, R/C air conditioners, OFPs, new carpets upstairs, roof storage, cellar, garden shed and remote double carport with access from Malmsbury Street.
Further enhanced by a sought-after and convenient lifestyle - this marvellous home is situated moments from the Harp or Kew Junction shopping areas including Leo's Fine Foods or Toscanos, cafes, restaurants and the forthcoming Kew Recreation complex. Also Eglinton Reserve or Victoria Park; plus transport options and easy access to an excellent selection of schools including the prestige private school precinct, the CBD, Yarra Valley or Mornington Peninsula via the Eastern Freeway.
Enquire about this property
Request Appraisal
Welcome to Kew 3101
Median House Price
$2,676,500
2 Bedrooms
$1,475,000
3 Bedrooms
$2,110,000
4 Bedrooms
$2,870,500
5 Bedrooms+
$4,680,000
Kew, positioned just 5 kilometres east of Melbourne's CBD, is renowned for its sophistication and elegance.


















