Sold303 Moray Street, South Melbourne
Inviting Style, Idyllic Location
With plans and permits approved by Nicholas Murray for a second storey extension, the possibilities are endless.
An inspired renovation completed only 12 months ago has utterly transformed this c1859 former shop into a unique, stylish and sophisticated domain offering a sensational inner bayside lifestyle only metres from Albert Park Lake, the Market, trams to the city and Clarendon St shops and restaurants.
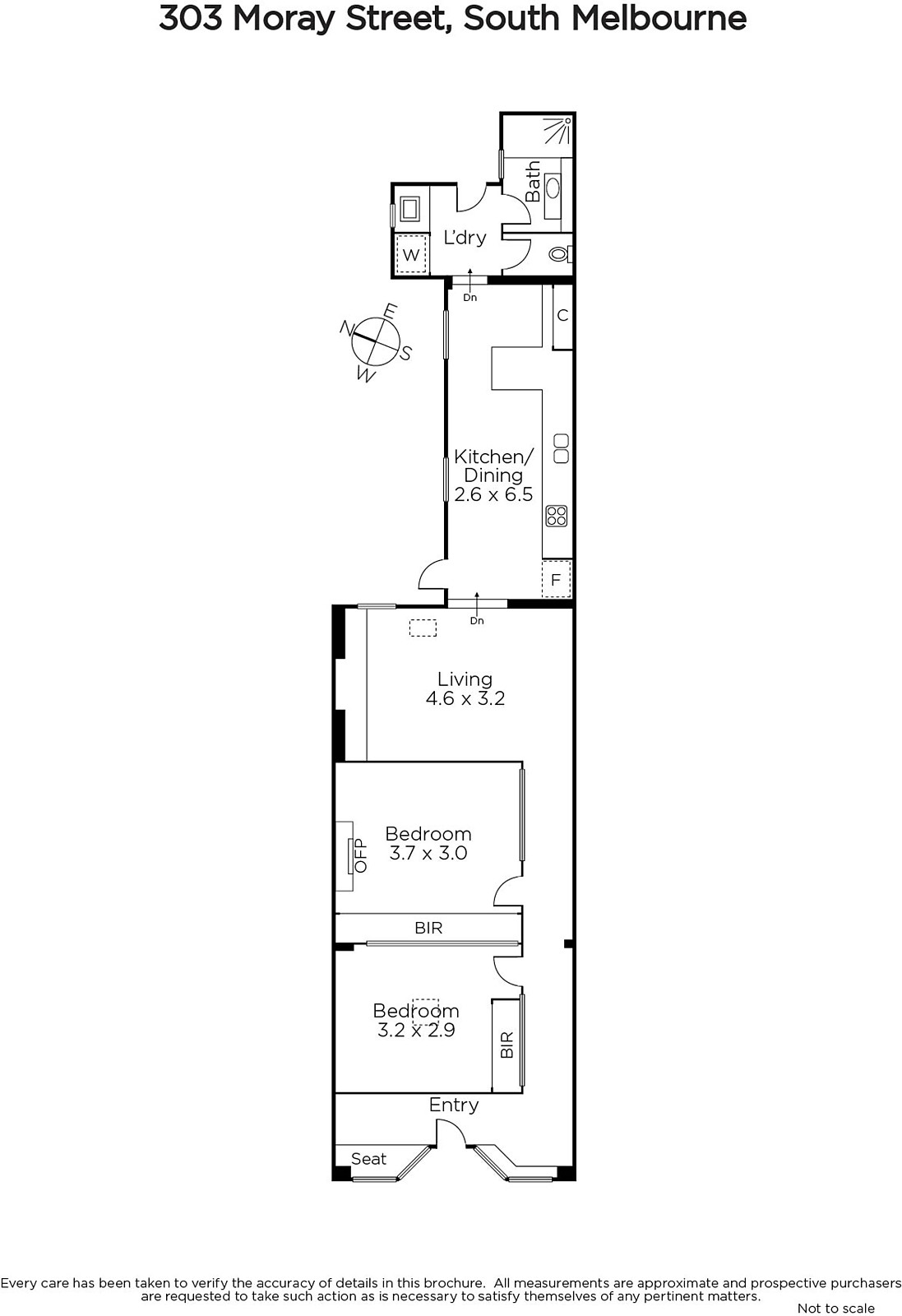
A clever gallery is a fabulous introduction to interior spaces that feature hardwood floors, bespoke joinery and painted brick walls. A timber paneled feature wall adds warmth to the generous light filled living room served by a sun-drenched state of the art kitchen with stone benches, Siemens pyrolytic oven, induction cooktop and dining bench. Living extends out to a private BBQ terrace and north facing paved courtyard with off street parking via rear right of way. The two spacious bedrooms with built in robes (one with an open fire) share a stylish bathroom with separate toilet and Euro-laundry.
A stylish sensation.
Enquire about this property
Request Appraisal
Welcome to South Melbourne 3205
Median House Price
$1,700,000
2 Bedrooms
$1,252,500
3 Bedrooms
$1,905,000
4 Bedrooms
$2,767,500
South Melbourne, situated just 2 kilometres from the heart of Melbourne’s CBD, is a vibrant and historic suburb known for its unique blend of cultural heritage, contemporary living, and dynamic community atmosphere.














