Sold300 Riversdale Road, Hawthorn East
Rare Opportunity to Take me to the Next Level
Inspection by Private Appointment on Saturday 21st between 1-1.30pm. Please contact the agent to arrange an appointment prior to arriving.
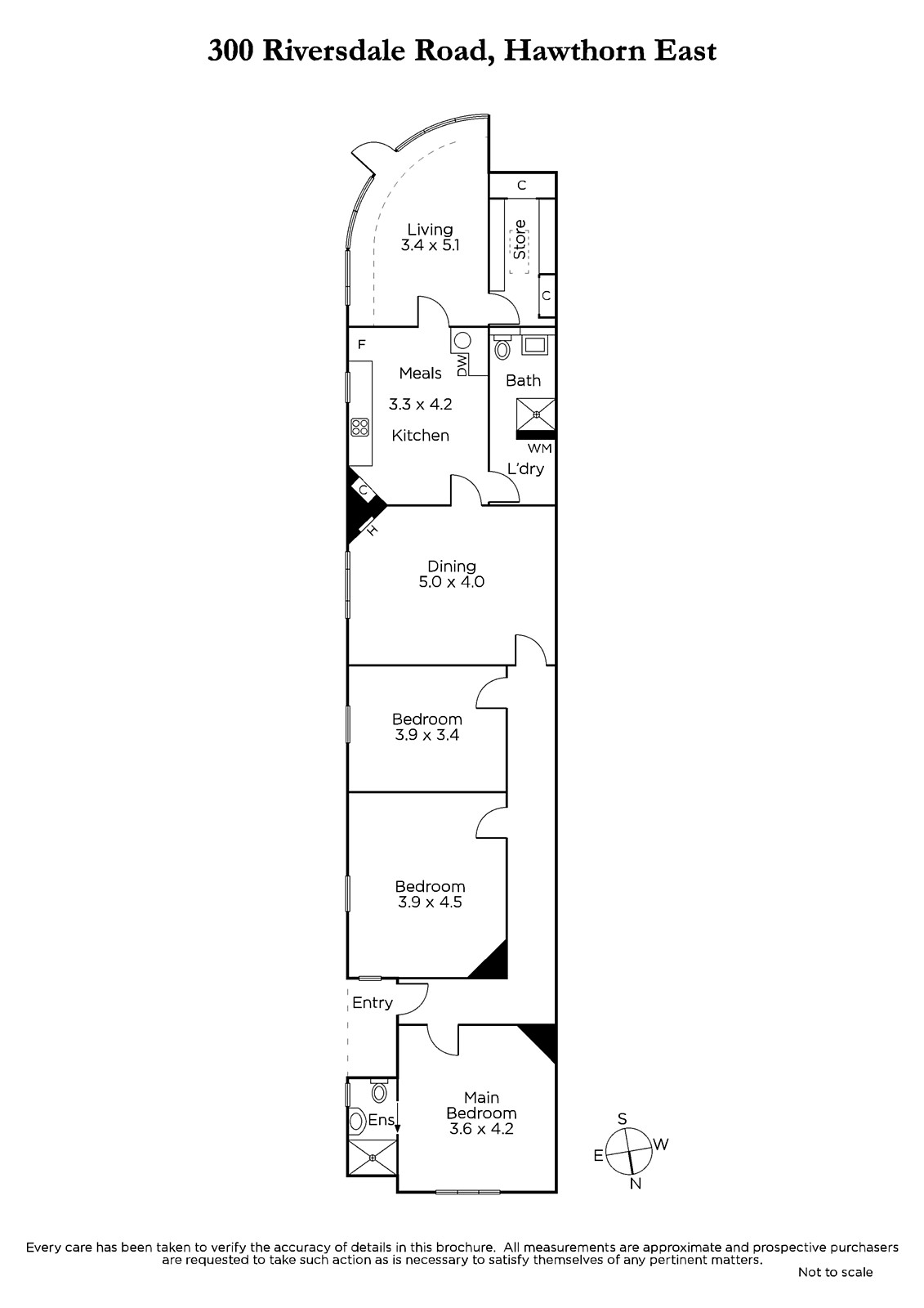
Opportunities like this are frequently sought but rarely found, for renovators or developers with an eye to the future to renovate and extend this classic Edwardian semi-detached brick home (STCA). Set well back on an unusually generous allotment of 407sqm approx. the property has ample room in a huge back garden to extend out and up at the rear, where a second storey would deliver new living areas in keeping with the demands of today's lifestyle; whilst allowing space for a deck and leafy garden adding to its considerable appeal. The home is largely in original but comfortable condition and features Wunderlich ceilings and a deceptively spacious interior including a wide hallway leading to three good-sized bedrooms, front main with an ensuite. Through to a full-width living room, period-style kitchen with adjoining bathroom/laundry and storeroom plus a conservatory family living area overlooking the garden. Other features include gas heater & air conditioner (living room) and a remote carport with rear lane access.
This brilliant opportunity is ideally positioned close to Camberwell Junction, Glenferrie Road or the Tooronga Shopping Complex and a myriad of sought-after schools, (zoned to Auburn South Primary). As well as walking distance to Fritsch Holzer Park or the Auburn Village shops and cafes, plus Gardiners Creek trails and easy CBD access via CityLink or public transport options.
Enquire about this property
Request Appraisal
Welcome to Hawthorn East 3123
Median House Price
$2,566,000
2 Bedrooms
$1,558,500
3 Bedrooms
$2,180,000
4 Bedrooms
$2,925,000
5 Bedrooms+
$4,157,500
Situated 7 kilometres east of Melbourne's centre, Hawthorn East offers a coveted mixture of greenery, historic charm, and modern amenities that cater to a wide range of preferences and lifestyles.















