Sold30 Walmer Street, Kew
"Moyvane" - A Landmark Studley Park Residence
"Moyvane" presents a rare opportunity to purchase a property of historical and architectural significance and arguably one of the earliest homes in the Studley Park area. This elegant, landmark slate roofed Victorian Italianate residence has a magnificent ambience; showcasing its original period features combined with the grand proportions typifying the gracious rooms of the late Victorian era on 2,670sqm (approx.). Complemented by a rare opportunity to undertake additional renovations and possible extensions (STCA) to deliver the very finest updated amenities for family enjoyment.
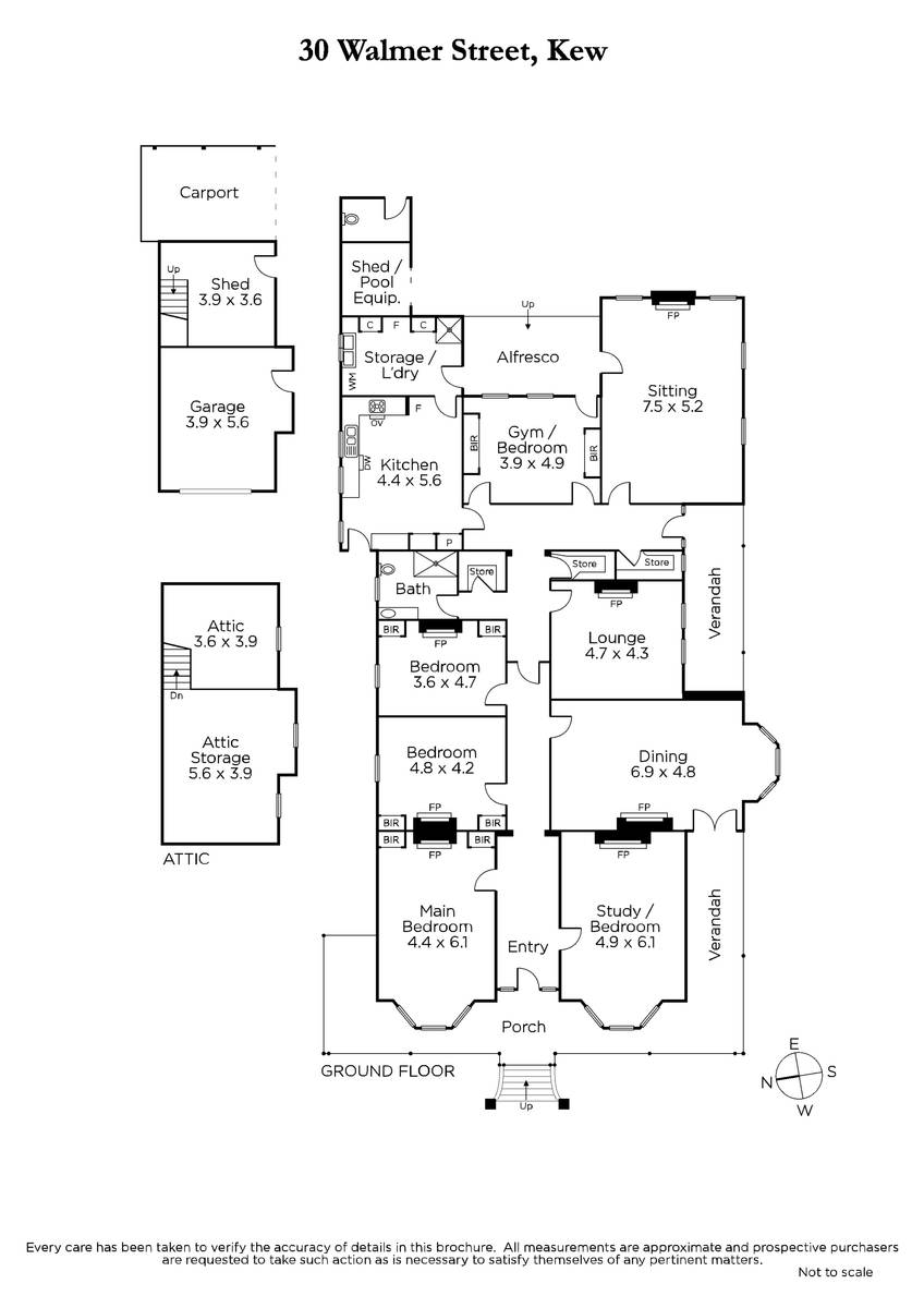
The superb facade features front bay windows, rendered wall decoration and iron lacework return verandah preceding a flexible internal floorplan featuring an impressive wide triple arched entrance hall flowing to a library, study or formal sitting room, a formal dining room with side garden vistas, four bedrooms with BIRs, a stylish period-style family bathroom, family retreat (or 5th bedroom) plus a generous informal living room and well-appointed kitchen with Euro stainless steel appliances, meals, adjoining laundry and original kitchen storage, walk-in linen press, boot room and external WC. Leading to the outdoor entertaining areas including a heated in-ground pool and alfresco dining area in the garden plus the original stables for garaging, storage/workshop and a potential upper level retreat, home office or gym. Other features include alarm, open fireplaces, Hydronic heating, garden watering system and valuable expired plans and Council permits for an extensive renovation.
This elegant and stately Victorian residence occupies a prominent elevated corner position with beautiful surrounding gardens and mature trees in the coveted and leafy seclusion of the Studley Park environs, close to Yarra Bend Park, Kew Junction, and within walking distance of transport, Victoria Gardens Complex plus easy access to many of Melbourne's finest schools - a splendid period residence away from the vibrant inner city nearby.
Land size: 2,670sqm approx.
Enquire about this property
Request Appraisal
Welcome to Kew 3101
Median House Price
$2,676,500
2 Bedrooms
$1,475,000
3 Bedrooms
$2,110,000
4 Bedrooms
$2,870,500
5 Bedrooms+
$4,680,000
Kew, positioned just 5 kilometres east of Melbourne's CBD, is renowned for its sophistication and elegance.

























