Sold30 Larnook Street, Prahran
Inviting Style, Idyllic Setting
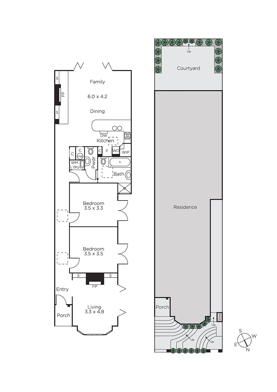
Proudly sitting above the serene Plane Tree-lined streetscape, this classic solid brick Edwardian residence is a timeless sanctuary of style and sunlight defined by a generosity of scale, bespoke finishes and superior quality.
Soaring 3.2m ceilings add to the sense of space while timber floors add rich character to the entrance hall and generous light-filled sitting room or 3rd bedroom with a stone open fire and bi-fold doors to a west-facing side terrace. Two gorgeous double bedrooms with French doors opening to the side garden are complemented by a stylish fully tiled bathroom and additional powder-room. The timber floors continue through the expansive open plan living and dining room with a stone fireplace and gourmet kitchen boasting stainless steel benches and Miele appliances. Bi-fold doors open allowing a seamless flow out to the private paved courtyard, a fragrant oasis completely surrounded by Jasmine.
Desirably situated just a short walk to High Street's shops and cafes, trams, Toorak Park and schools, it includes ducted heating, RC/air-conditioning, Euro-laundry and ample storage. Land size: 188sqm














