Sold30 Beaver Street, Malvern East
"Cromley"- Edwardian Originality in the Gascoigne Estate
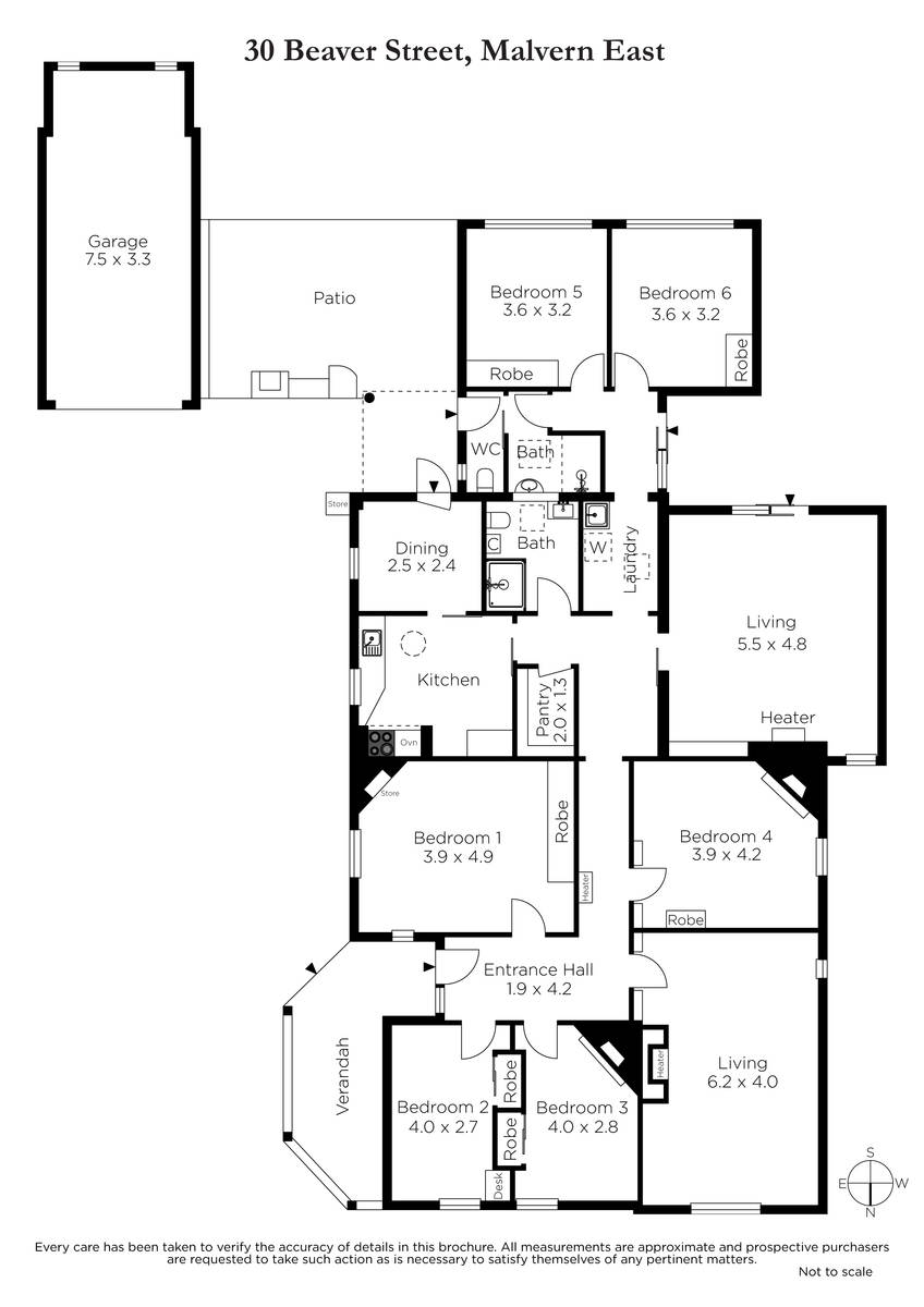
Majestically positioned within a substantial 930sqm approx. private allotment in the prestigious Gascoigne Estate, this classic solid brick Edwardian residence's original features and gracious proportions provide the basis for an inspired reimagining as luxurious family home (STCA).
A broad verandah introduces an L-shaped hall leading to an elegant sitting room with exquisite leadlight window and an equally spacious living room with timber floors. The original kitchen and casual dining area open to the deep private leafy garden. An abundance of accommodation comprises five bedrooms all with built in robes, a possible study and two bathrooms.
Just a short walk to Central Park, Malvern station, Wattletree Rd trams, Malvern Primary and other excellent schools and Central Park Village shops and restaurants, it includes a laundry, water tank, shed and garage.
Enquire about this property
Request Appraisal
Welcome to Malvern East 3145
Median House Price
$2,182,500
2 Bedrooms
$1,457,500
3 Bedrooms
$1,930,000
4 Bedrooms
$2,530,500
5 Bedrooms+
$2,962,500
Situated 12 kilometres southeast of Melbourne’s bustling CBD, Malvern East is a suburb renowned for its blend of family-friendly charm and cosmopolitan living.



















