Sold3/77 Princess Street, Kew
Private and Peaceful Position at the Rear of Only 3
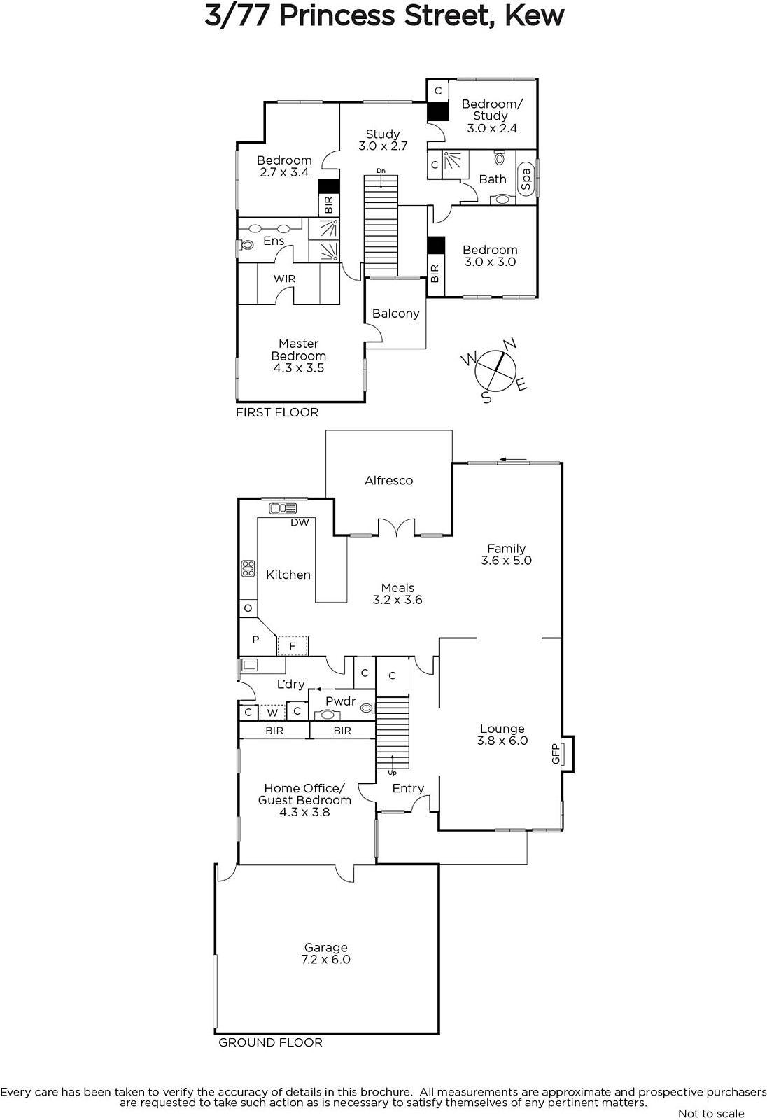
This impeccably presented town residence presents a seamless blend of elegant and functional family living highlighted by generous proportions, considered design and stylish comfort. Superbly appointed with premium finishes throughout, a wide entrance hallway introduces the formal sitting room with a Heat & Glo gas log fireplace and flows through to relaxed family living and dining and a stylish Smeg kitchen overlooking the private north facing alfresco area. A light filled main bedroom features a balcony, luxurious walk in robe and sleek ensuite, complemented by four additional spacious bedrooms complete with built in robes, plus a further bedroom or study. Comprehensive features include hardwood flooring, plush carpet, double garage with rear right of way and internal access, ample storage, central bathroom, powder room, laundry and intercom access.
Privately positioned at the rear of three exclusive dwellings on the allotment, the abode is conveniently located moments from Kew Junction, the prestigious Studley Park precinct, fine schooling options and excellent transport links.









